A water tank is a container that is used to store and hold water. Water tanks are often found on rooftops, in basements, or in other elevated locations. They can be made of a variety of materials, including plastic, fiberglass, or metal, and can come in a range of sizes to suit different needs.
Water tanks are used for a variety of purposes, including supplying water for irrigation, providing backup water for household use during a drought or water outage, and storing water for use in industrial or commercial settings. In some cases, water tanks may also be used to store potable water for human consumption.
Water tanks can be either above ground or underground and can be equipped with various types of pumps and filtration systems to ensure that the water is clean and safe to use.
If you want to know about the water tank detail or toilet detail or staircase detail, please click the link.
1) Water tank detail drawing
A water tank detail drawing is a technical drawing that shows all the important details of a water tank, including its size, capacity, material, and any additional features it may have. It may also include information about the location and orientation of the tank, as well as any piping or other infrastructure connected to it.
A water tank detail drawing is typically used by engineers, architects, and other professionals to design and construct a water tank, or to make repairs or modifications to an existing tank. It is an important tool for ensuring that the tank is properly designed, built, and maintained to meet the needs of the intended use.
Some common features that may be shown on a water tank detail drawing include:
- The size and shape of the tank, including its dimensions and volume
- The material used to construct the tank, such as concrete, steel, or plastic
- The type of water storage system, such as a gravity-fed or pressurized system
- Any additional features, such as overflow pipes, level indicators, or access hatches
- The location and orientation of the tank, including its height above ground level
- Any connected piping or other infrastructure, such as inlet and outlet pipes, valves, and pumps
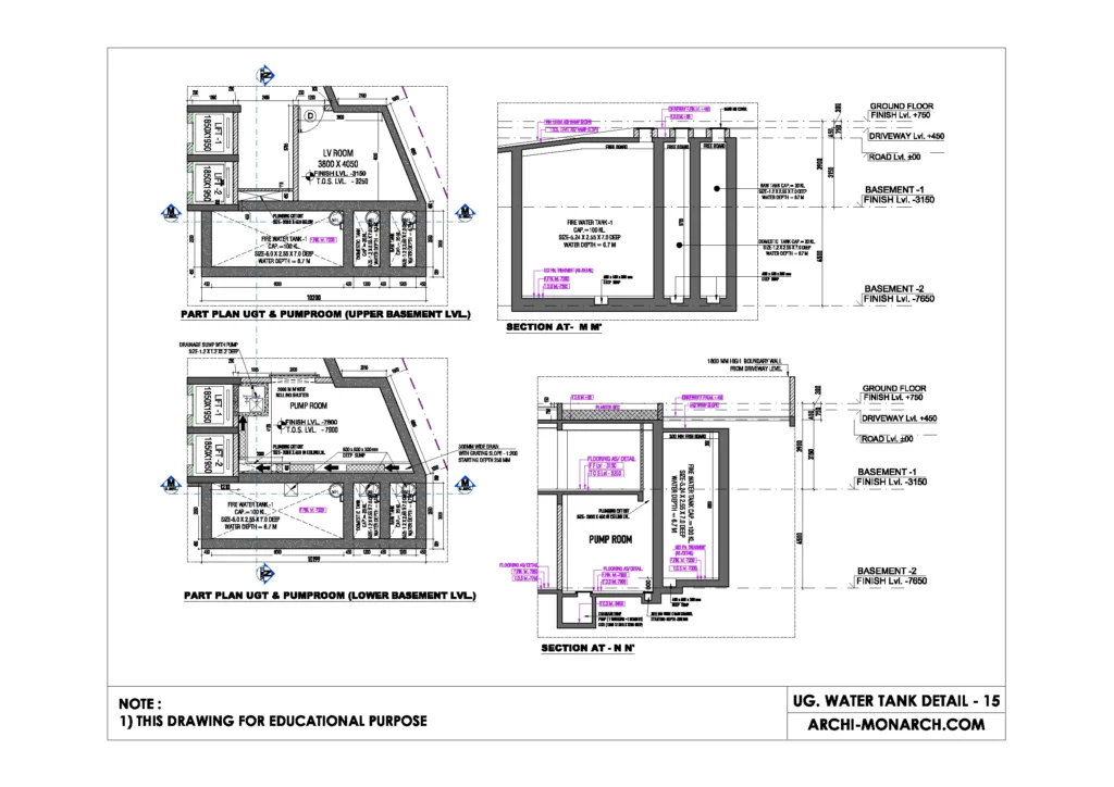
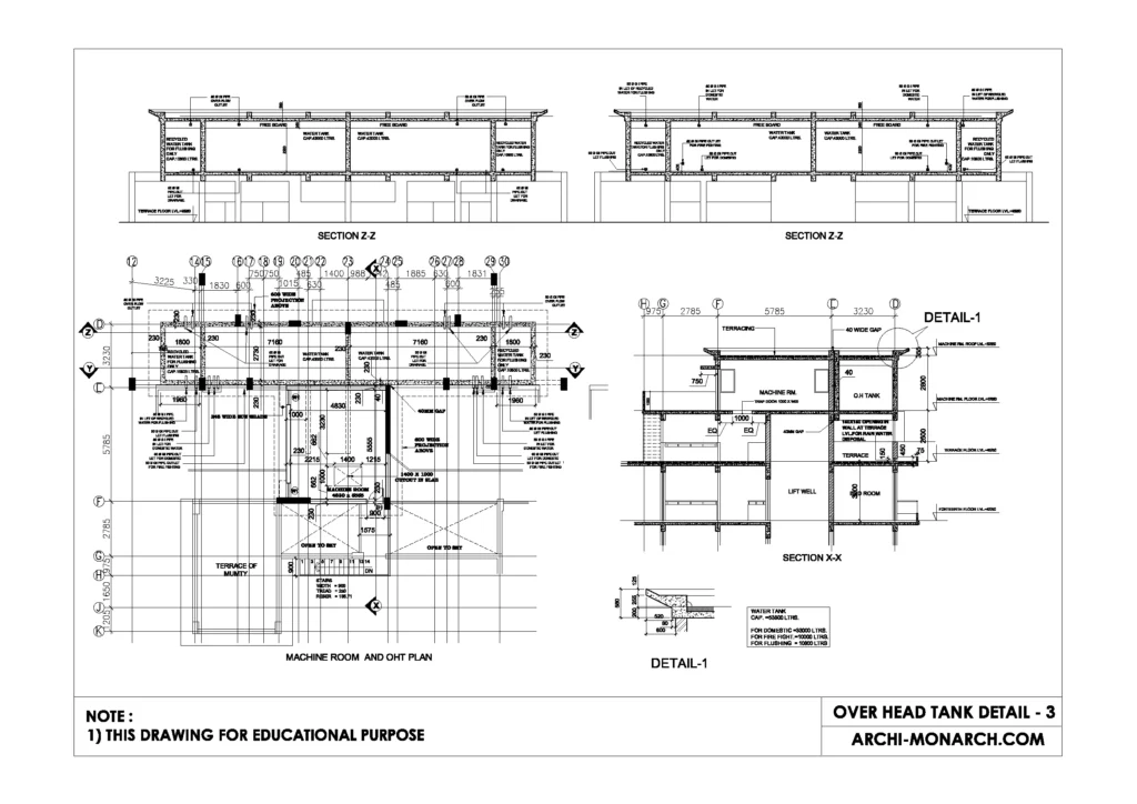
Example of water tank (underground tank) detail drawing

It is important to carefully review a water tank detail drawing to ensure that it accurately reflects the intended use and design of the tank. Any errors or discrepancies in the drawing can have serious consequences, such as structural failure or contamination of the stored water.
If you want to know more about the water supply requirements for building, please click the link.
2) Architectural Downloadable Stuff (water tank detail)
With the help of a community of architects, designers, and manufacturers as well as students they are creating a water tank detail library for Archi-Monarch which is helpful for beginner architects and students.
WATER TANK DETAIL DRAWINGS in Auto-Cad
Improve your ARCHITECTURAL knowledge with the help of this educational site and also available downloadable architectural data…
3) Direct Downloadable Stuff
These are some items (water tank detail drawings). it’s a downloadable product and it’s used for only educational purposes…..
UG WATER TANK DETAIL – 4
In DWG. Format.

UG WATER TANK DETAIL – 15
In DWG. Format.

OVER HEAD TANK DETAIL – 3
In DWG. Format.

OVER HEAD TANK DETAIL – 4
In DWG. Format.

RELATED STUFF AND VIDEO
UG WATER TANK DETAIL ONE
An architectural water tank is a type of water storage tank that is designed to be incorporated into the design of a building or structure…
UG WATER TANK DETAIL TWO
An architectural water tank is a type of water storage tank that is designed to be incorporated into the design of a building or structure…

