WELCOME TO
ALL ABOUT STAIRCASE DETAILS
Architectural Downloadable Stuff for Beginner Architects and Students
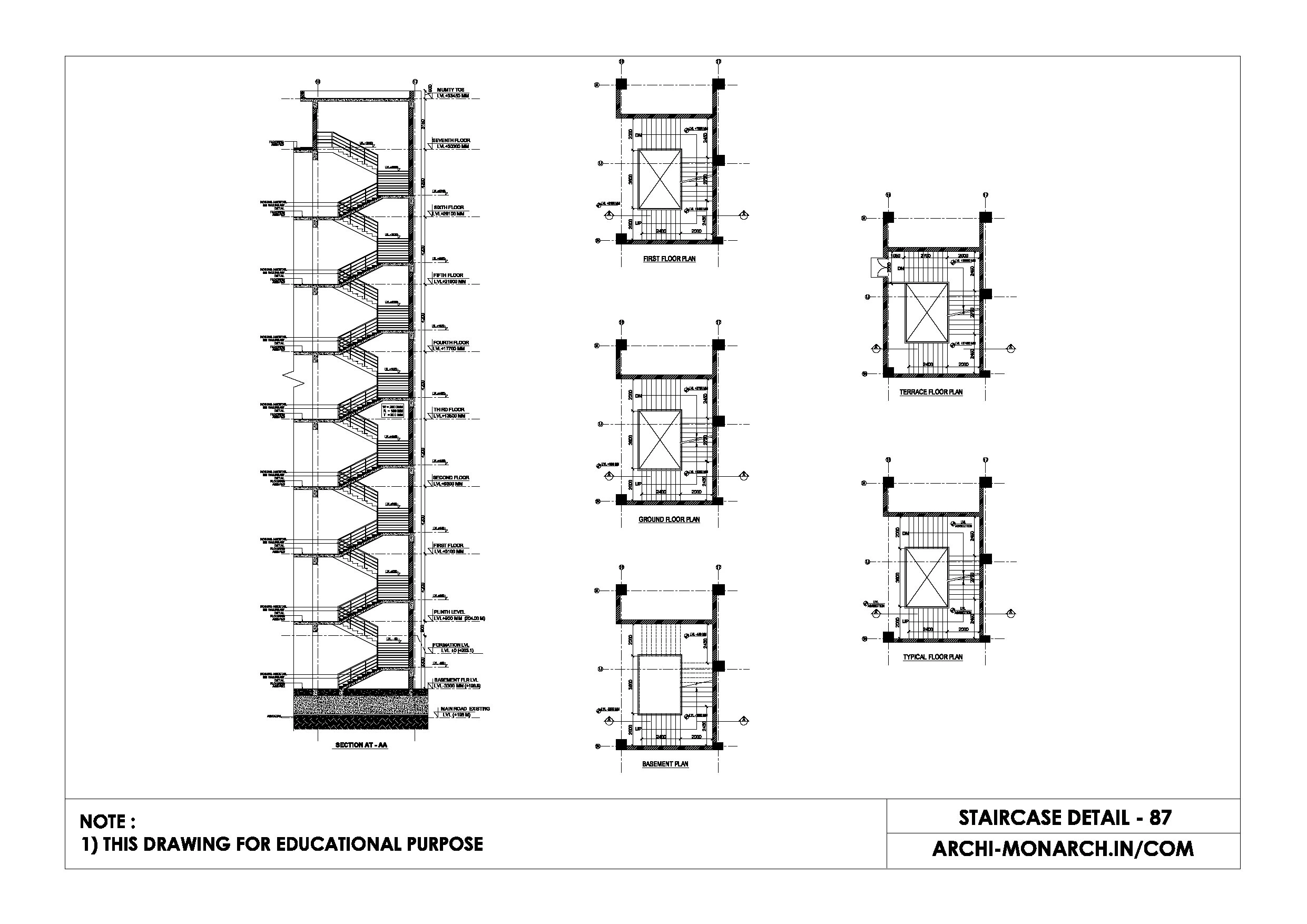
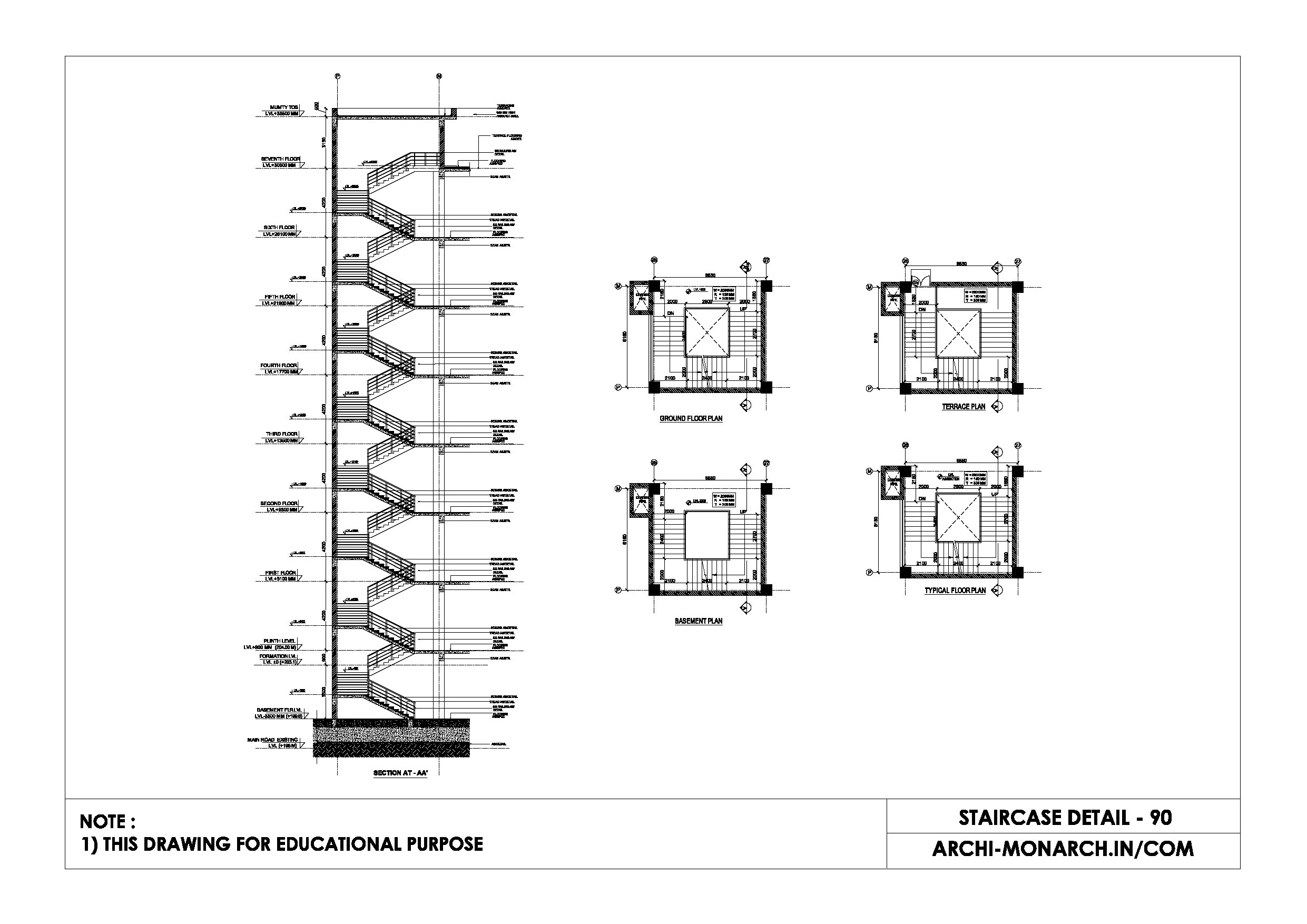
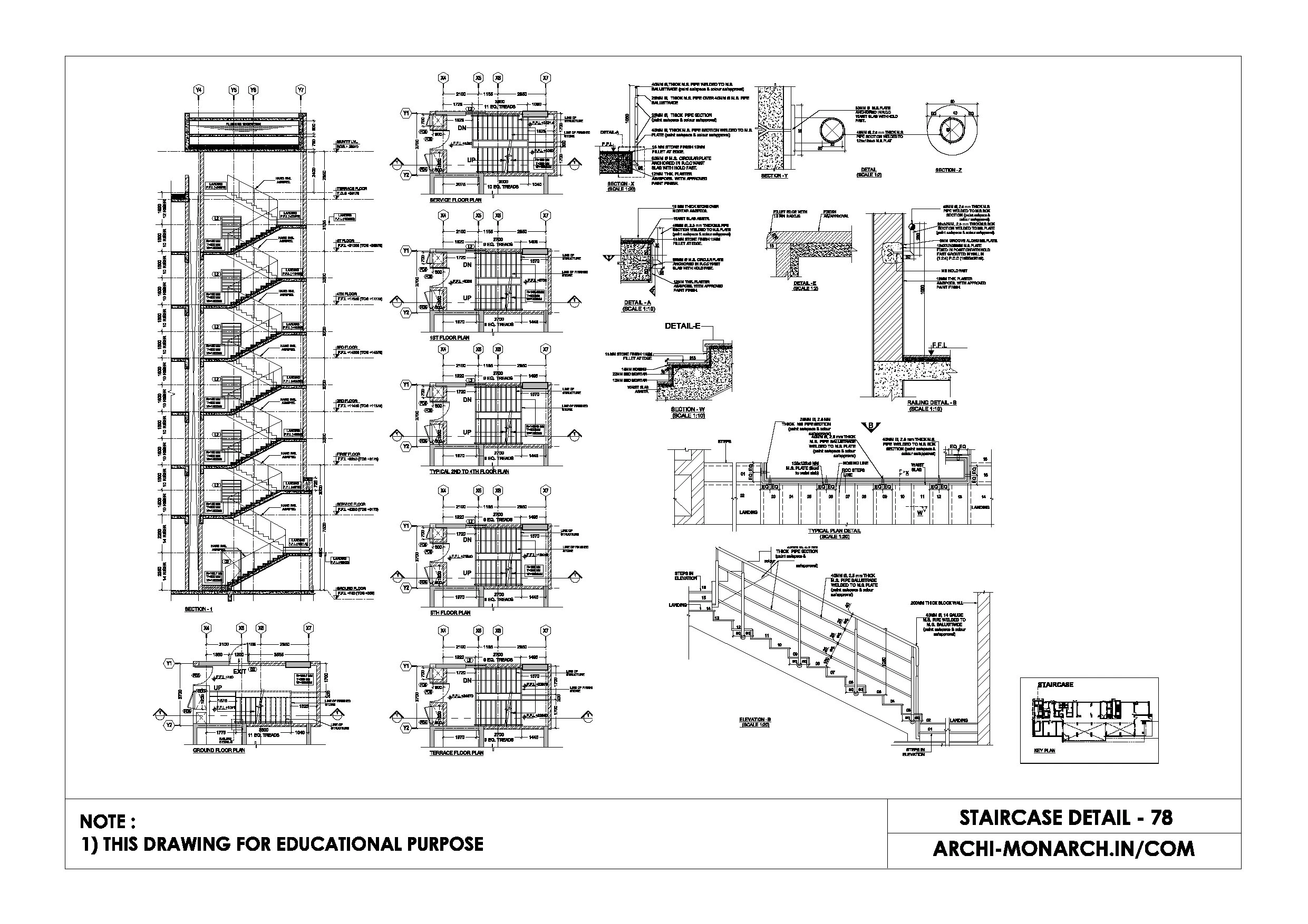
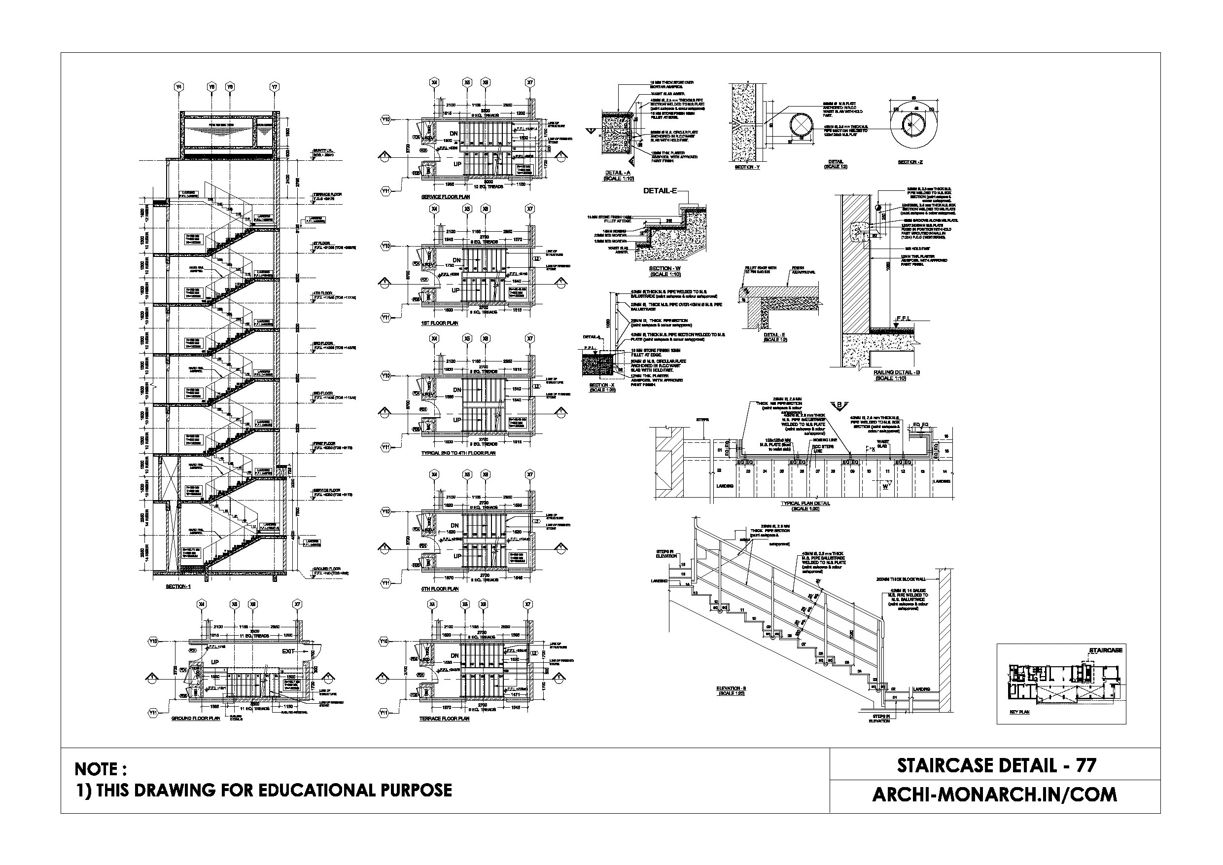
STAIRCASE DETAILS
With the help of a community of architects, designers, and manufacturers as well as students they are creating a staircase detail library for Archi-Monarch which is helpful for beginner architects and students.
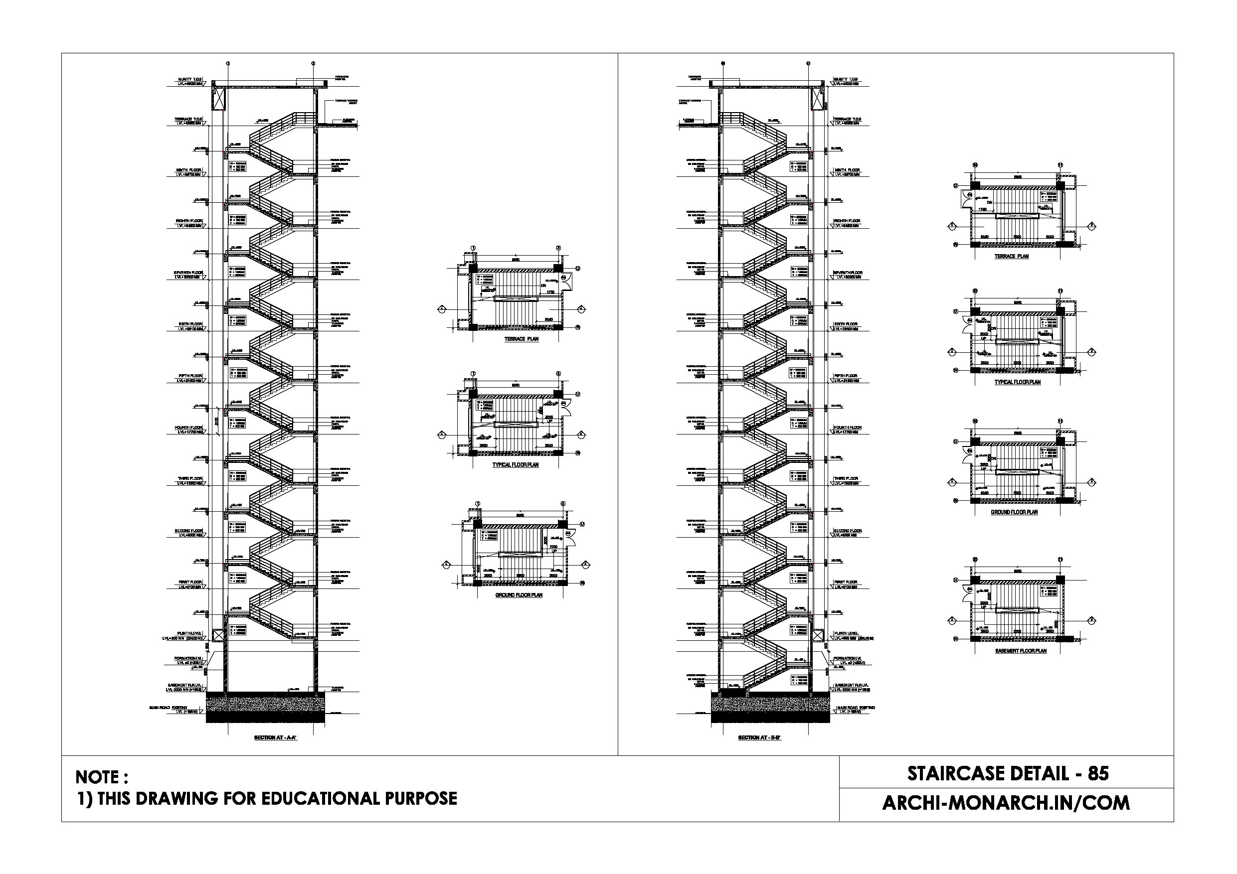
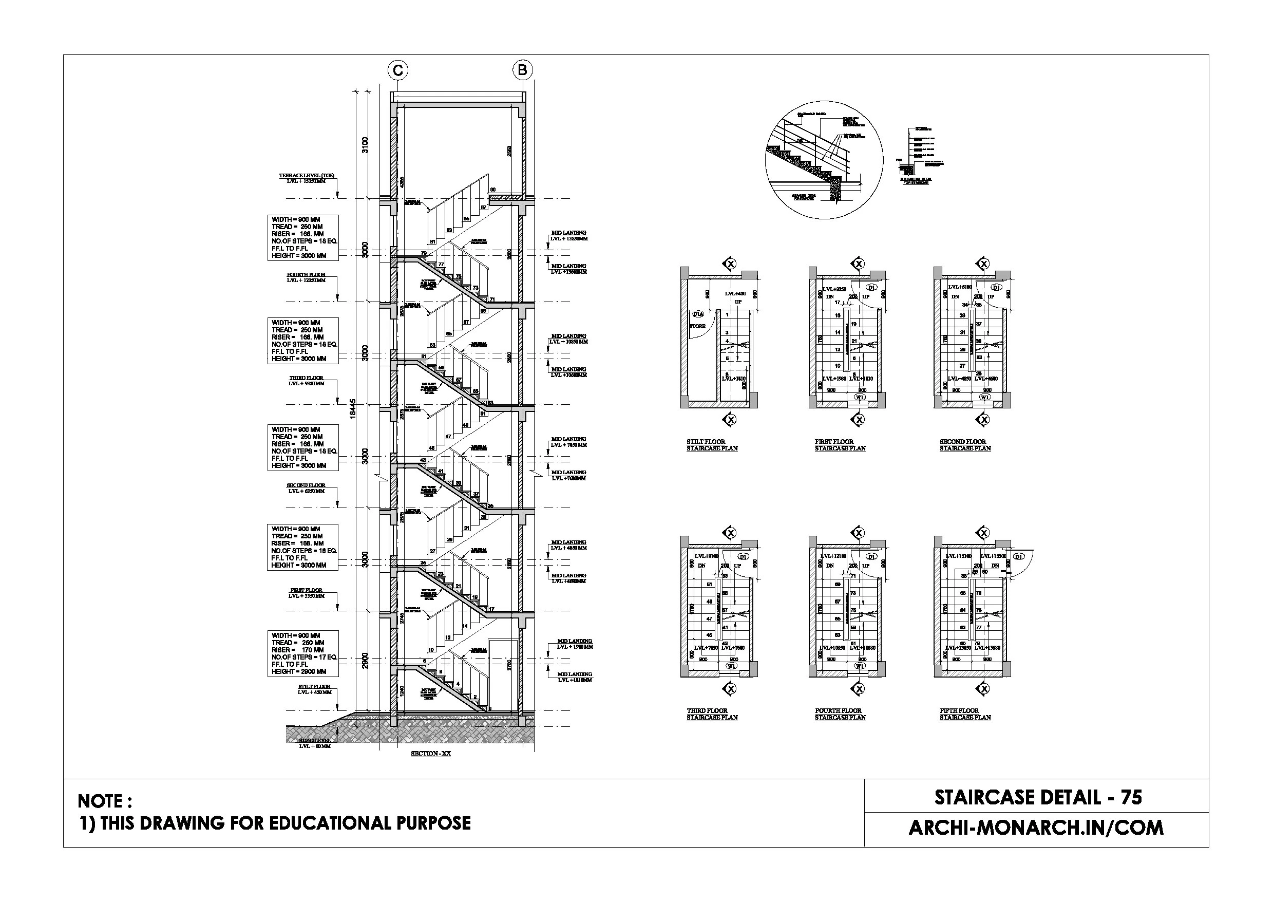
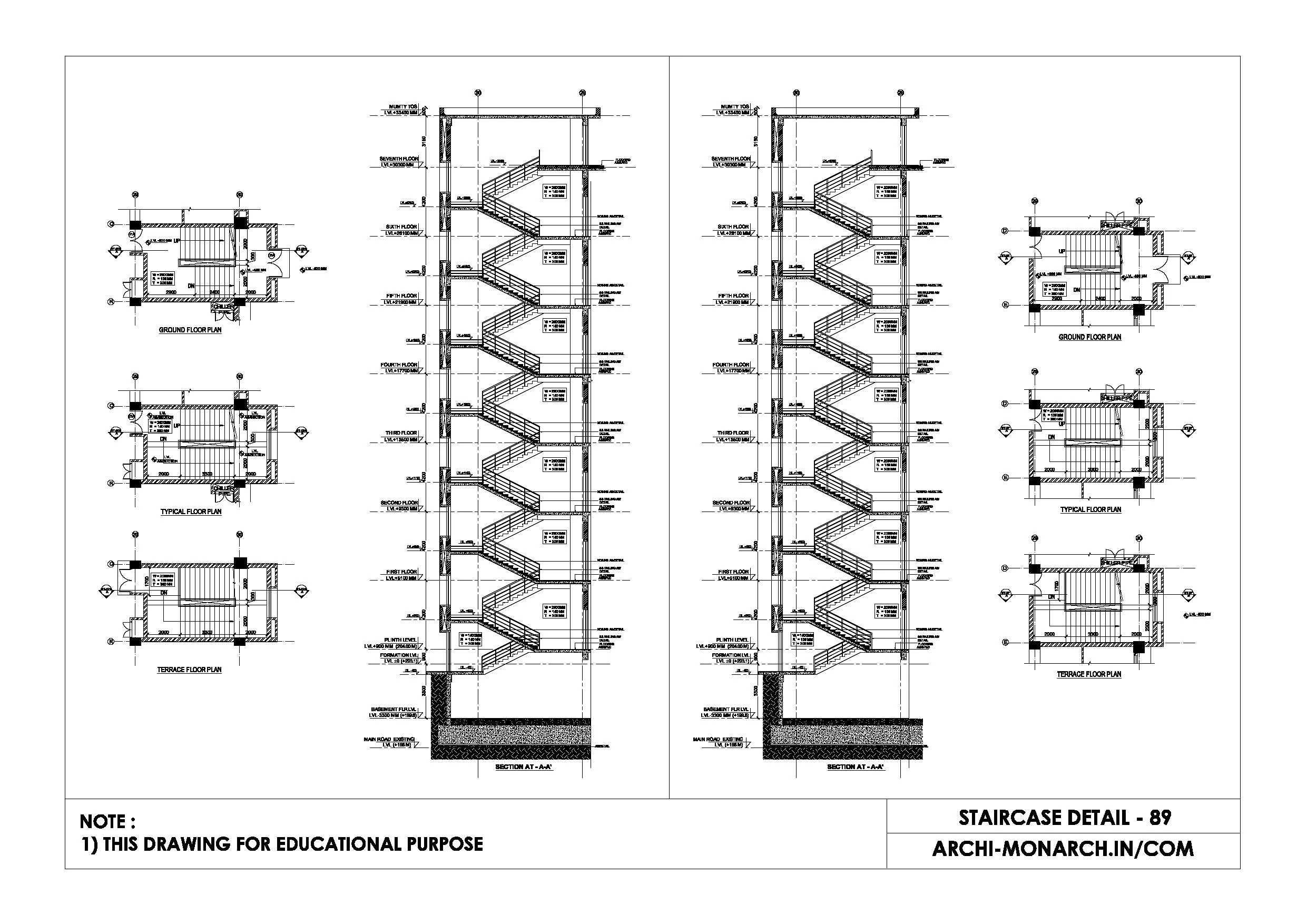
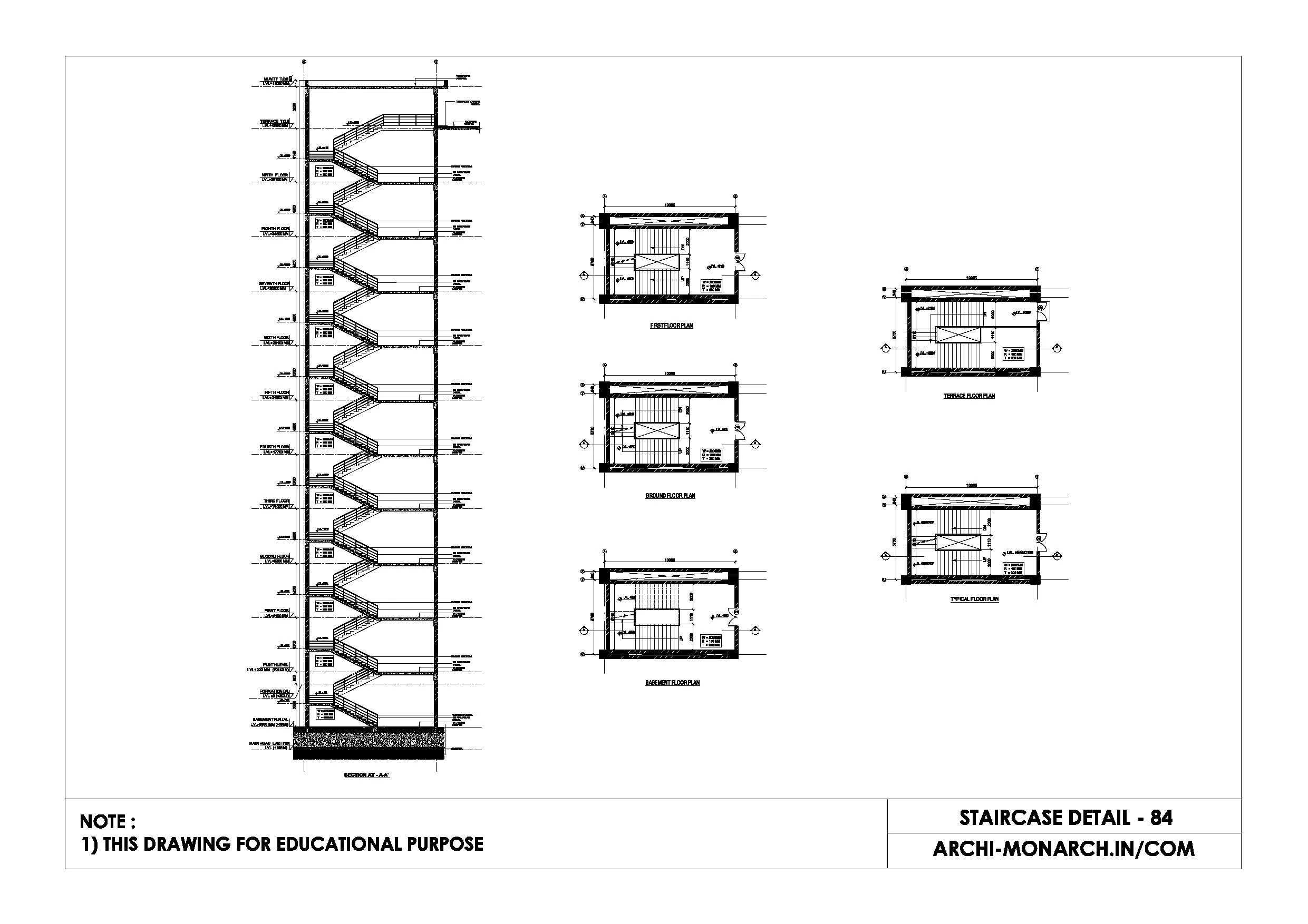
About staircase detail
Architectural staircase detail drawings are technical drawings used in construction to provide detailed information about the design and construction of a staircase.
These drawings typically include information such as the materials to be used, the dimensions of the stairway, the location and size of risers and treads, and any other special features or considerations.
They are often used by builders, architects, and engineers to ensure that the staircase is built to the correct specifications and conforms to building codes and regulations.
OTHER DETAILS RELATED TO STAIRCASE
