WELCOME TO
ALL ABOUT KITCHEN DETAILS
Architectural Downloadable Stuff for Beginner Architects and Students
KITCHEN DETAILS
With the help of a community of architects, designers, and manufacturers as well as students they are creating a kitchen details library for Archi-Monarch which is helpful for beginner architects and students.
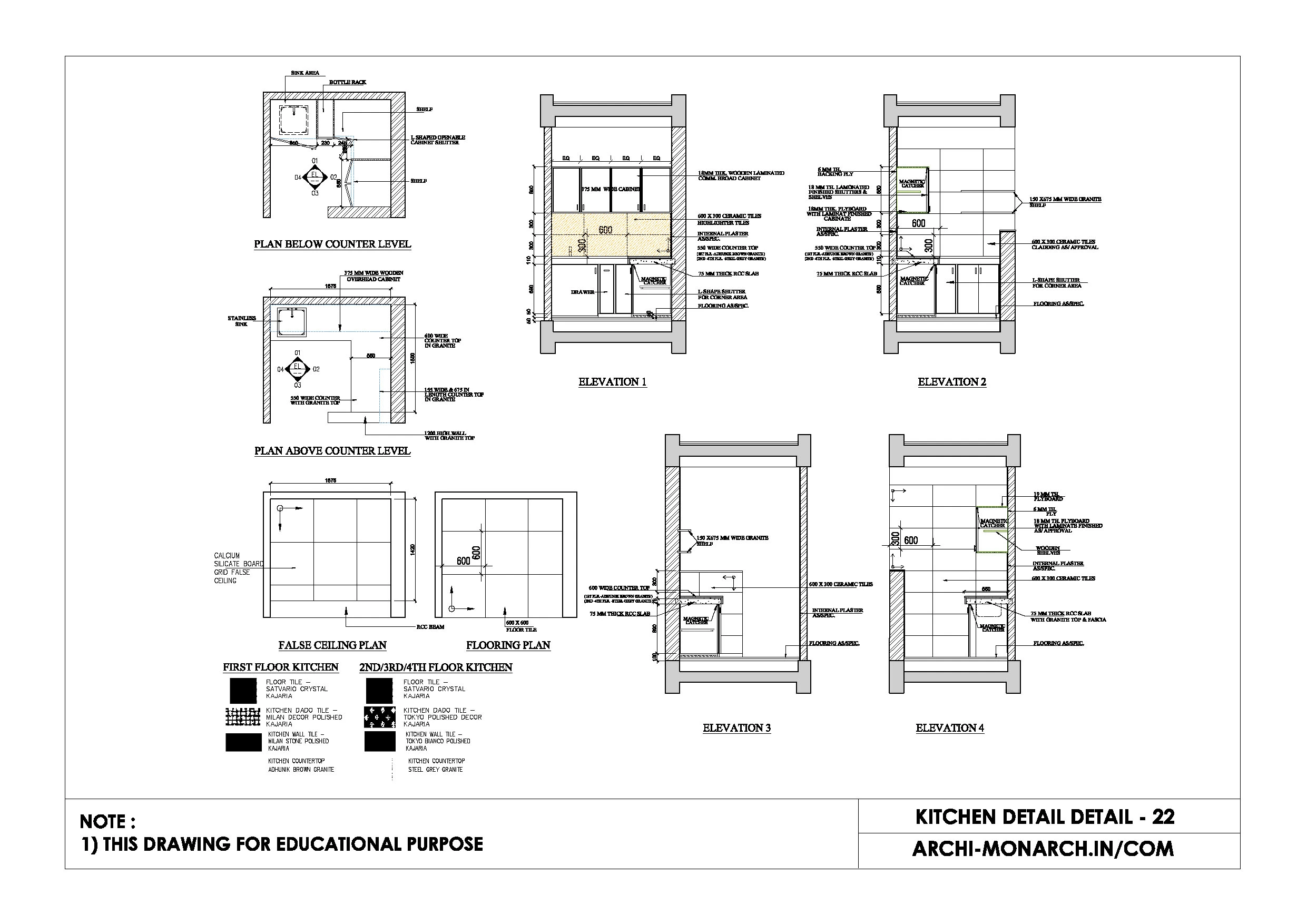
About kitchen detail
Architectural kitchen detail drawings are technical drawings that show specific information about the design and construction of a kitchen.
These drawings typically include information about the layout of the kitchen, the location of cabinets, countertops, appliances, and other fixtures, as well as details about the materials and construction methods to be used.
They are used by architects, builders, and contractors during the construction process to ensure that the kitchen is built according to the design specifications. They may also be used for permitting and inspection purposes.
KITCHEN PLUMBING LAYOUTS
