WELCOME TO
ALL ABOUT RAMP DETAILS
Architectural Downloadable Stuff for Beginner Architects and Students
RAMP DETAILS
With the help of a community of architects, designers, and manufacturers as well as students they are creating a ramp details library for Archi-Monarch which is helpful for beginner architects and students.
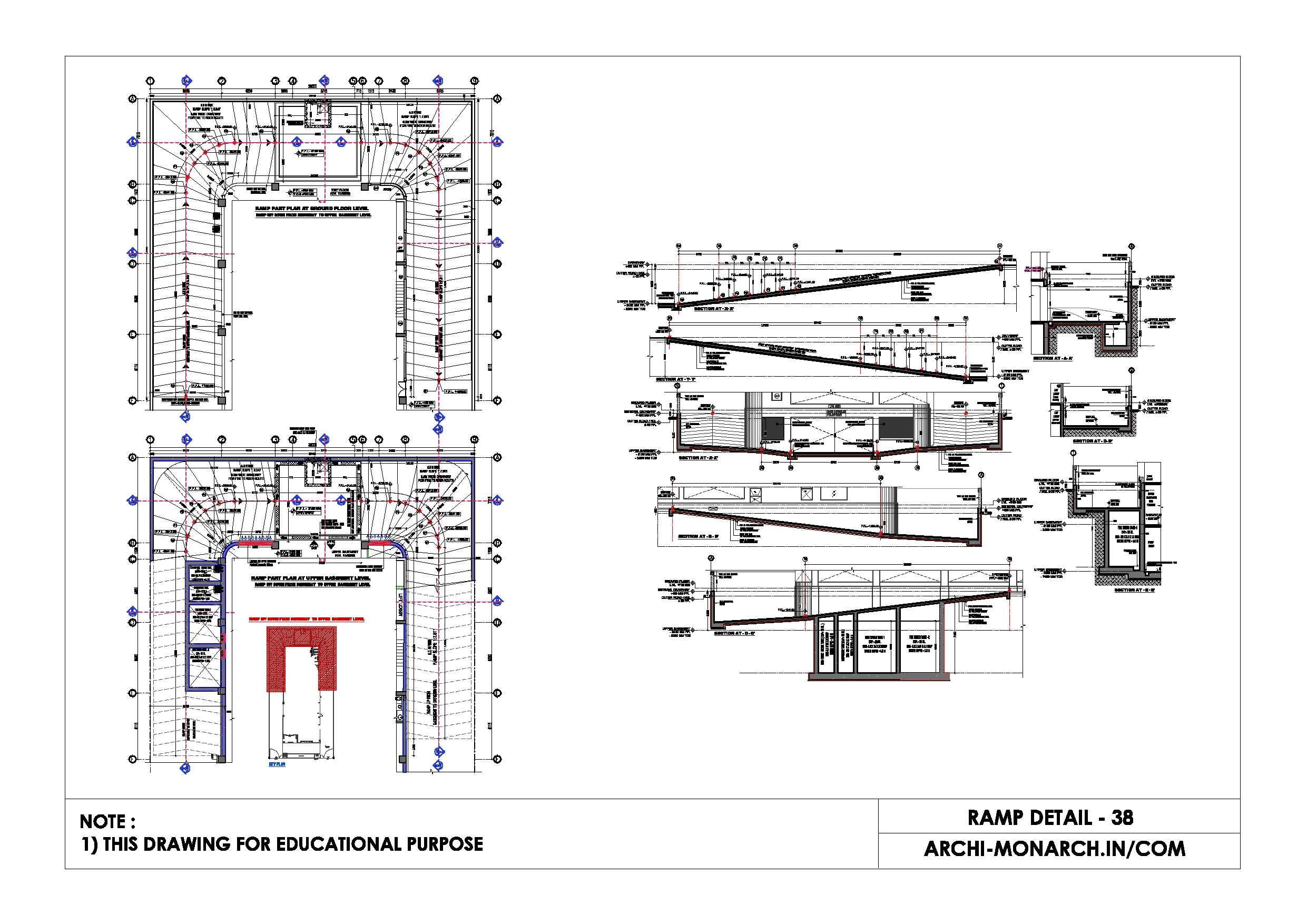
About ramp detail
Architectural ramp detail drawings are technical drawings that provide specific information about the design and construction of ramps in a building.
They typically include information about the materials and dimensions of the ramp, as well as details about the handrails, guardrails, and surface finishes. These drawings are used by architects, builders, and contractors to ensure that the ramp is built to code and meets the needs of people with disabilities.
They also provide a detailed plan for the construction of the ramp, which helps to ensure that it is built correctly and safely.
OTHER DETAILS RELATED TO RAMP
