WELCOME TO
ALL ABOUT TOILET DETAILS
Architectural Downloadable Stuff for Beginner Architects and Students
TOILET DETAILS
With the help of a community of architects, designers, and manufacturers as well as students they are creating a toilet details library for Archi-Monarch which is helpful for beginner architects and students.
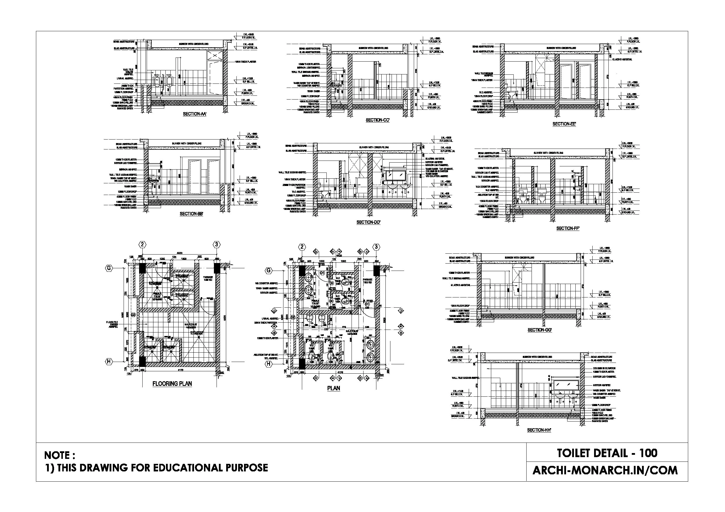
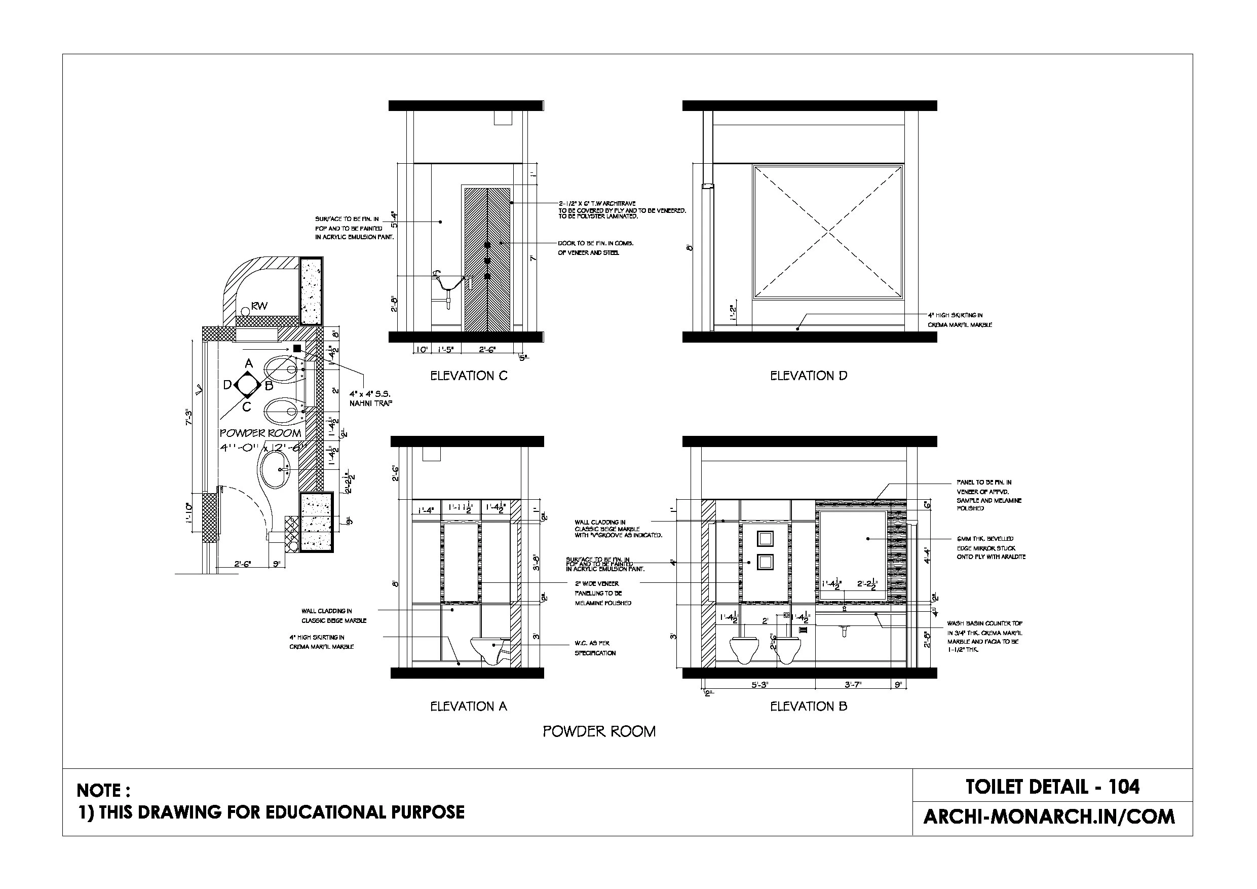
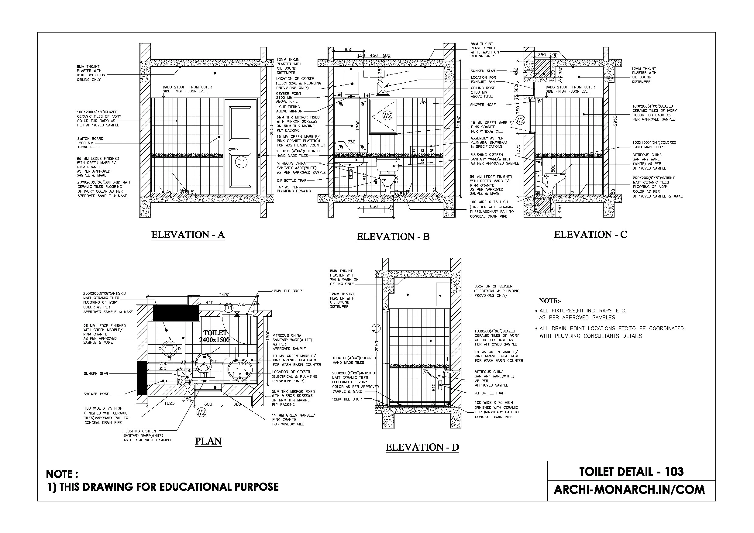
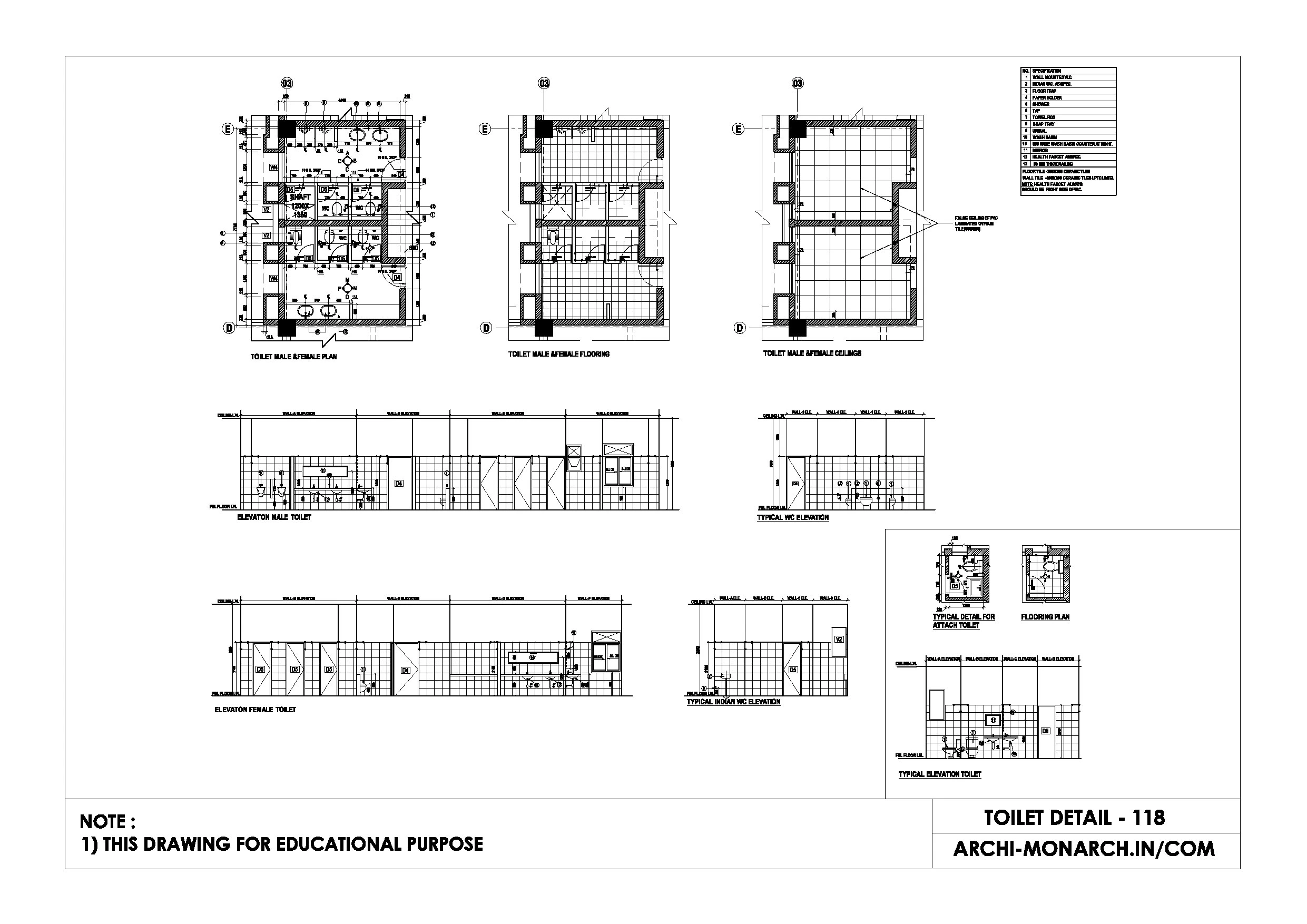
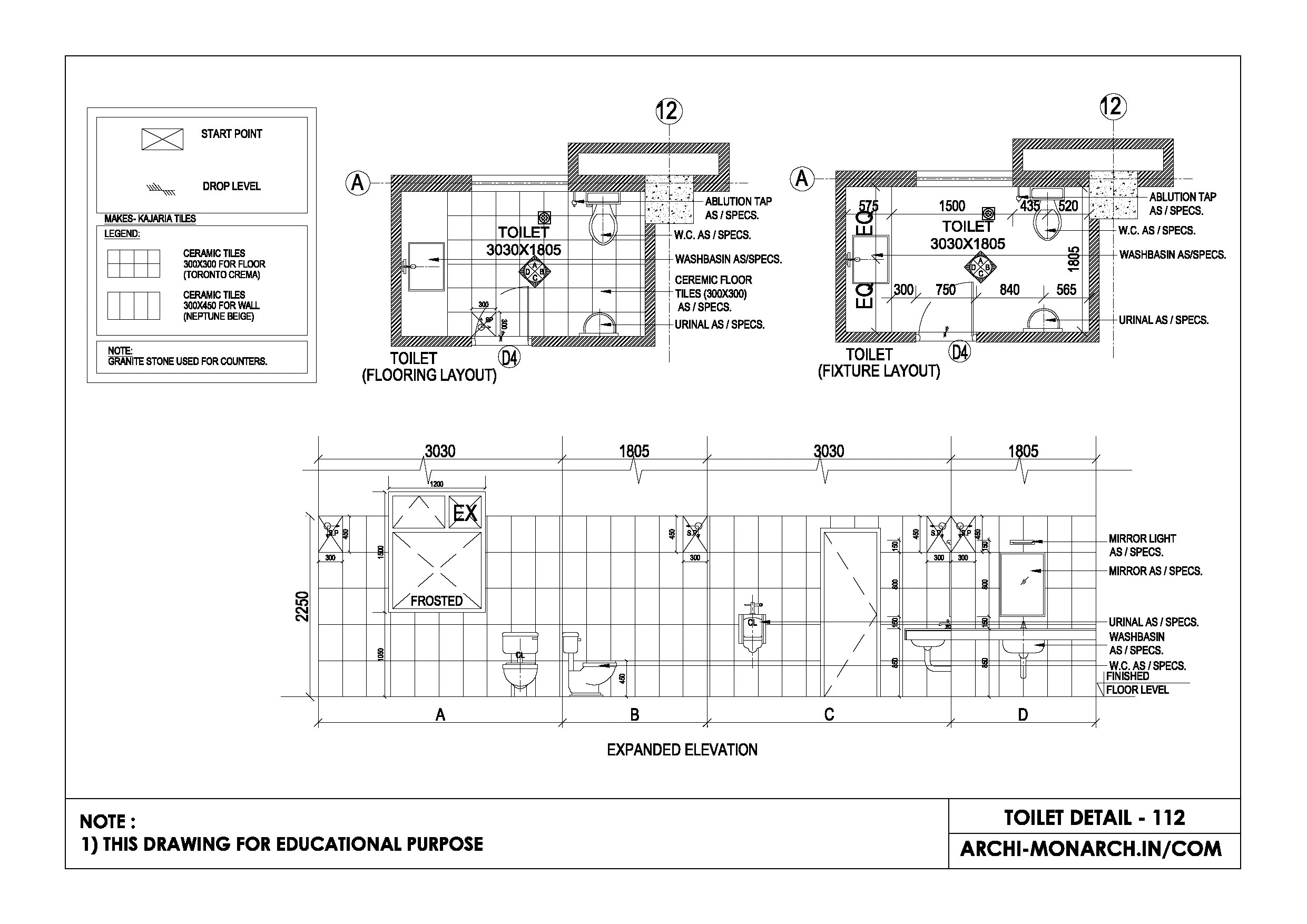
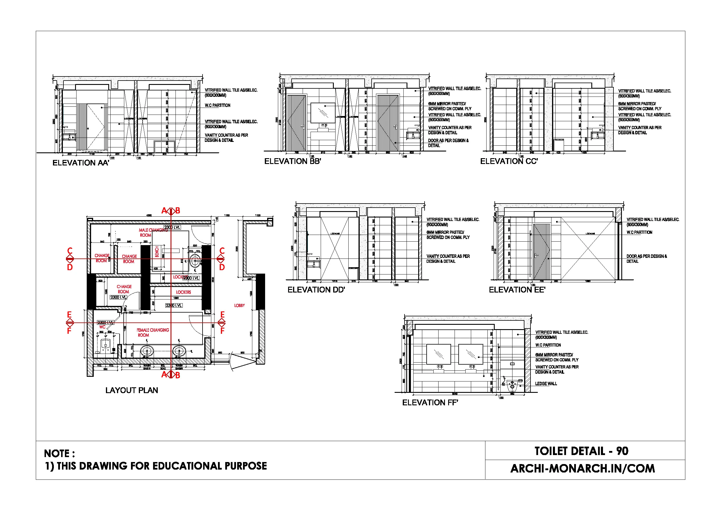
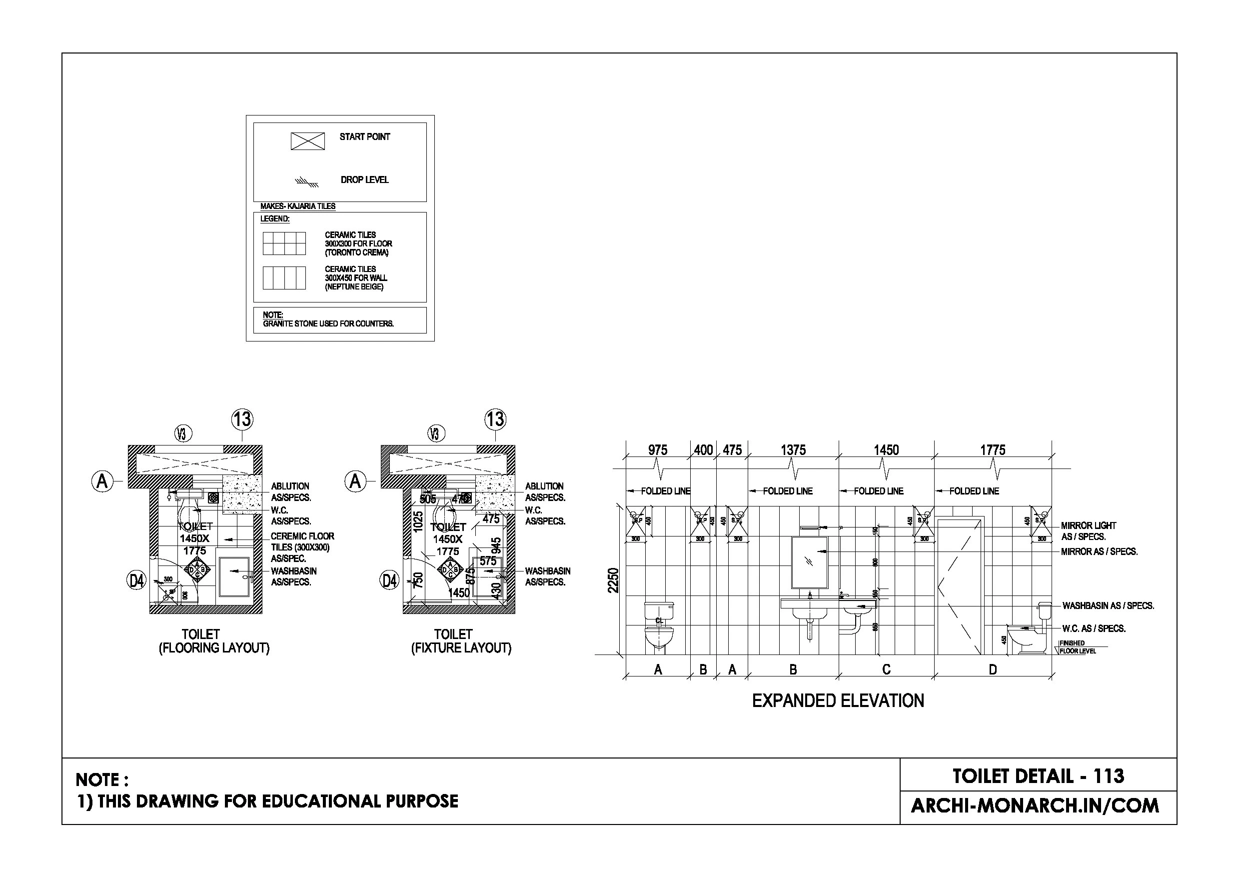
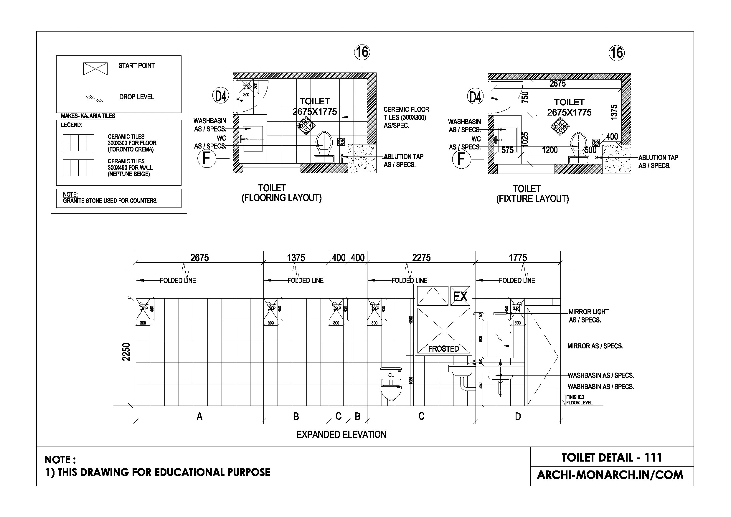
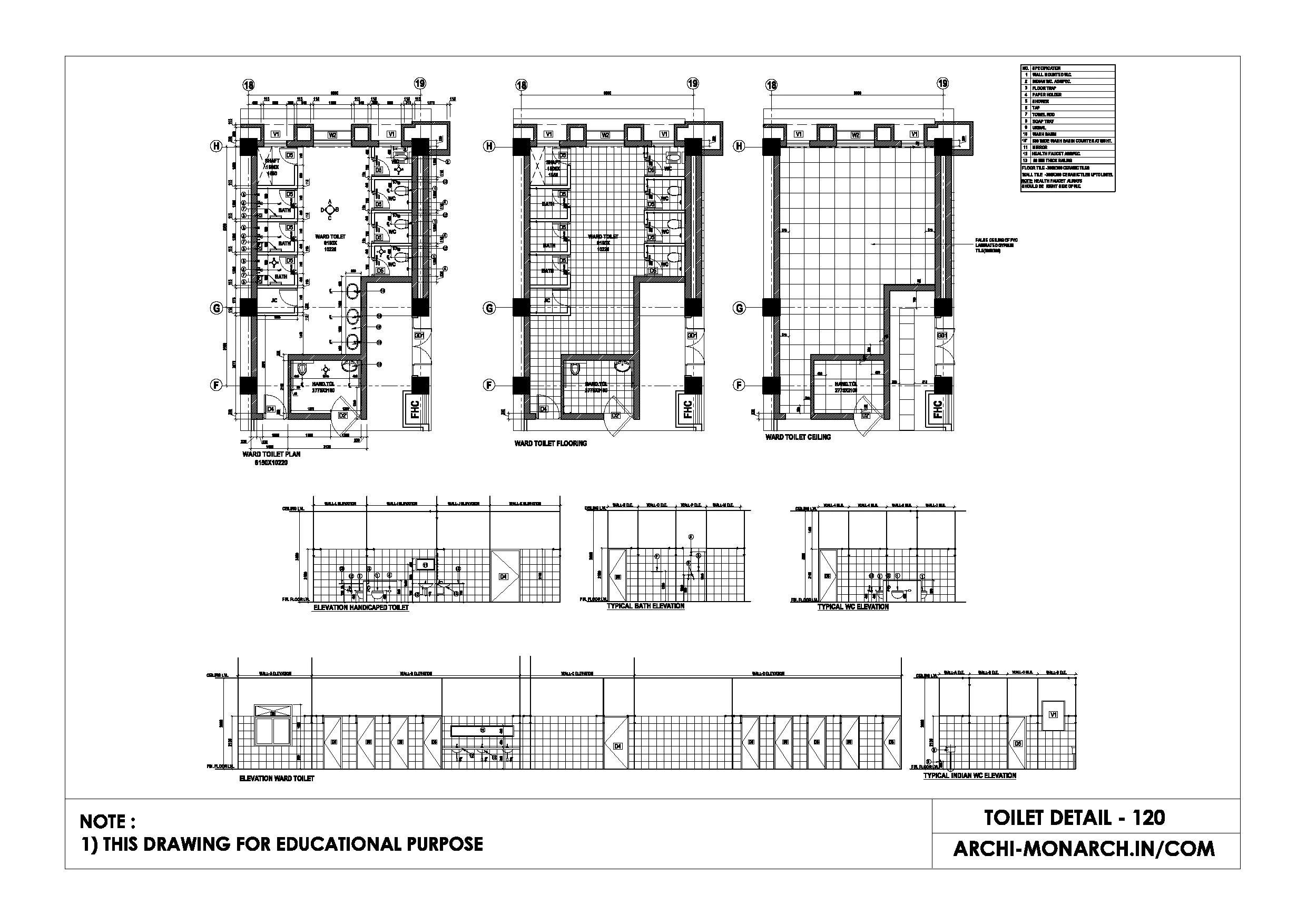
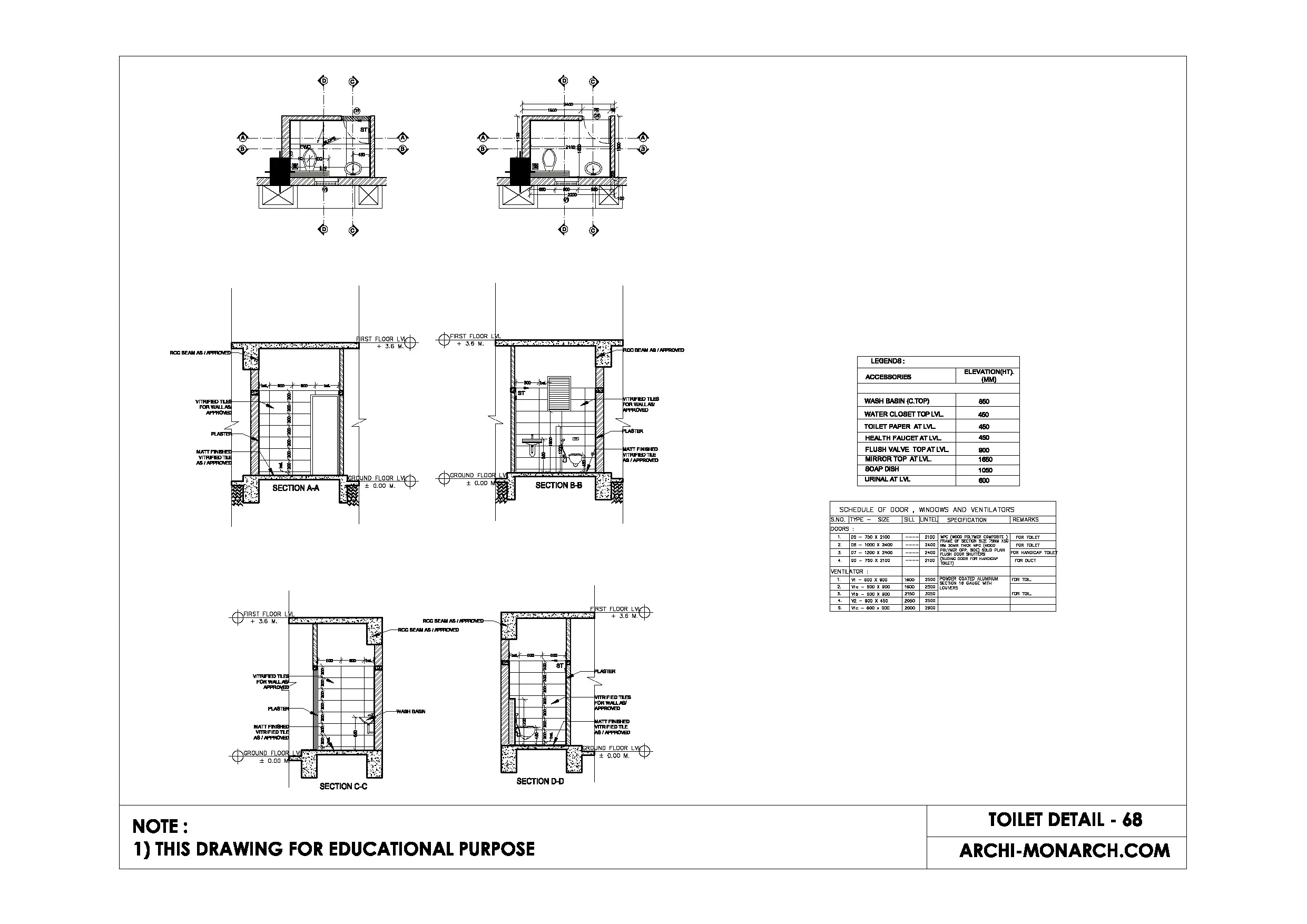
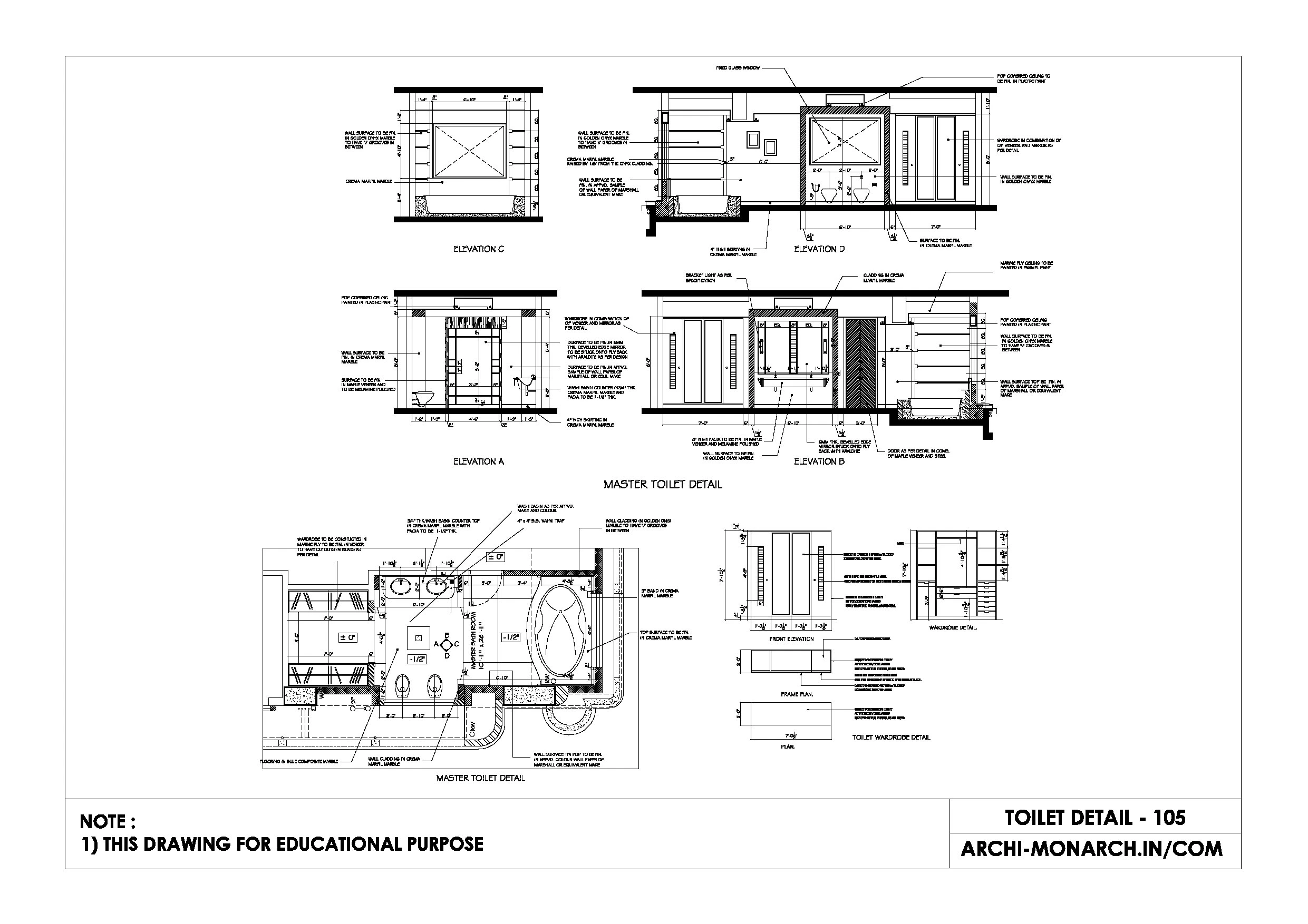
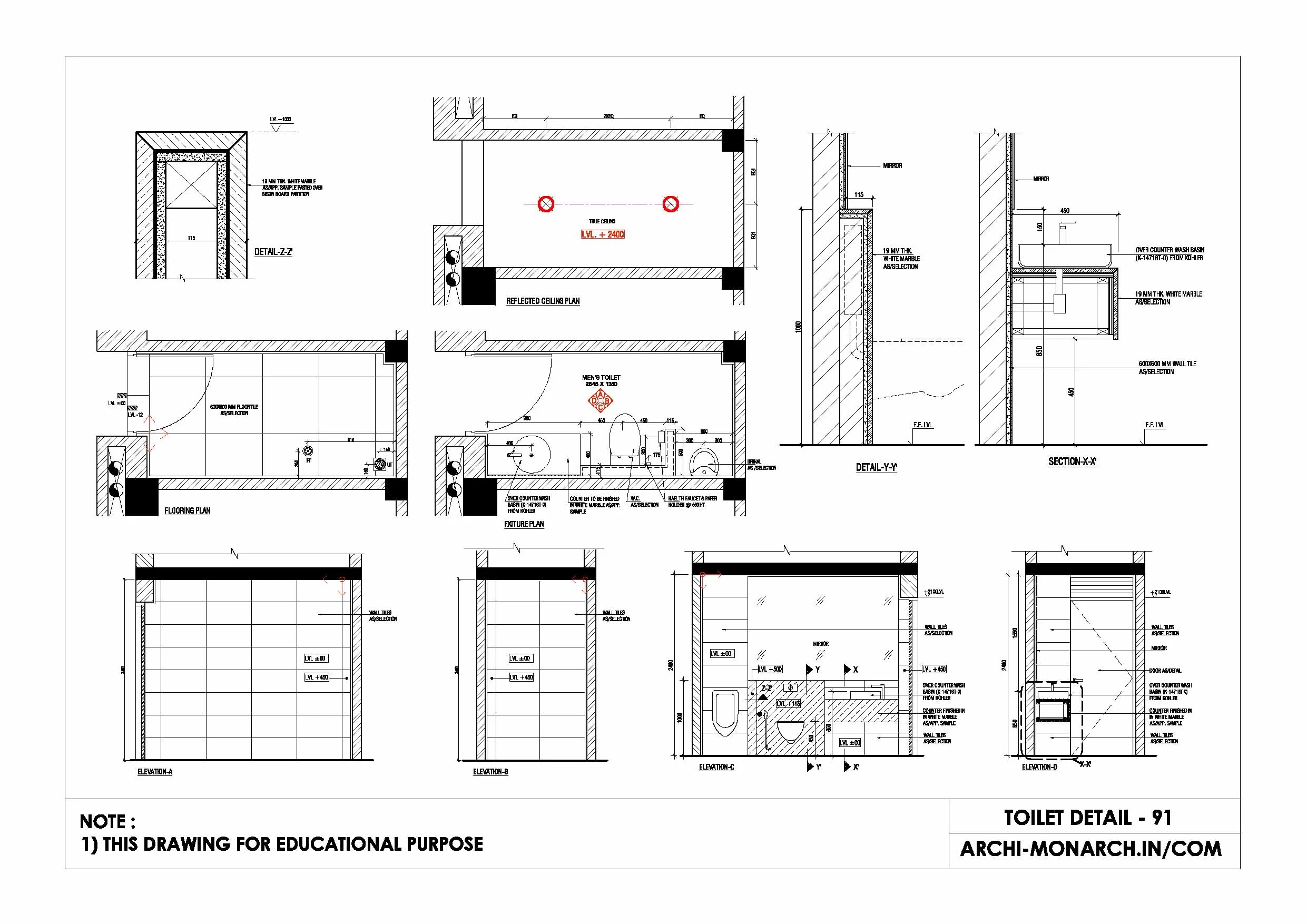
About toilet detail
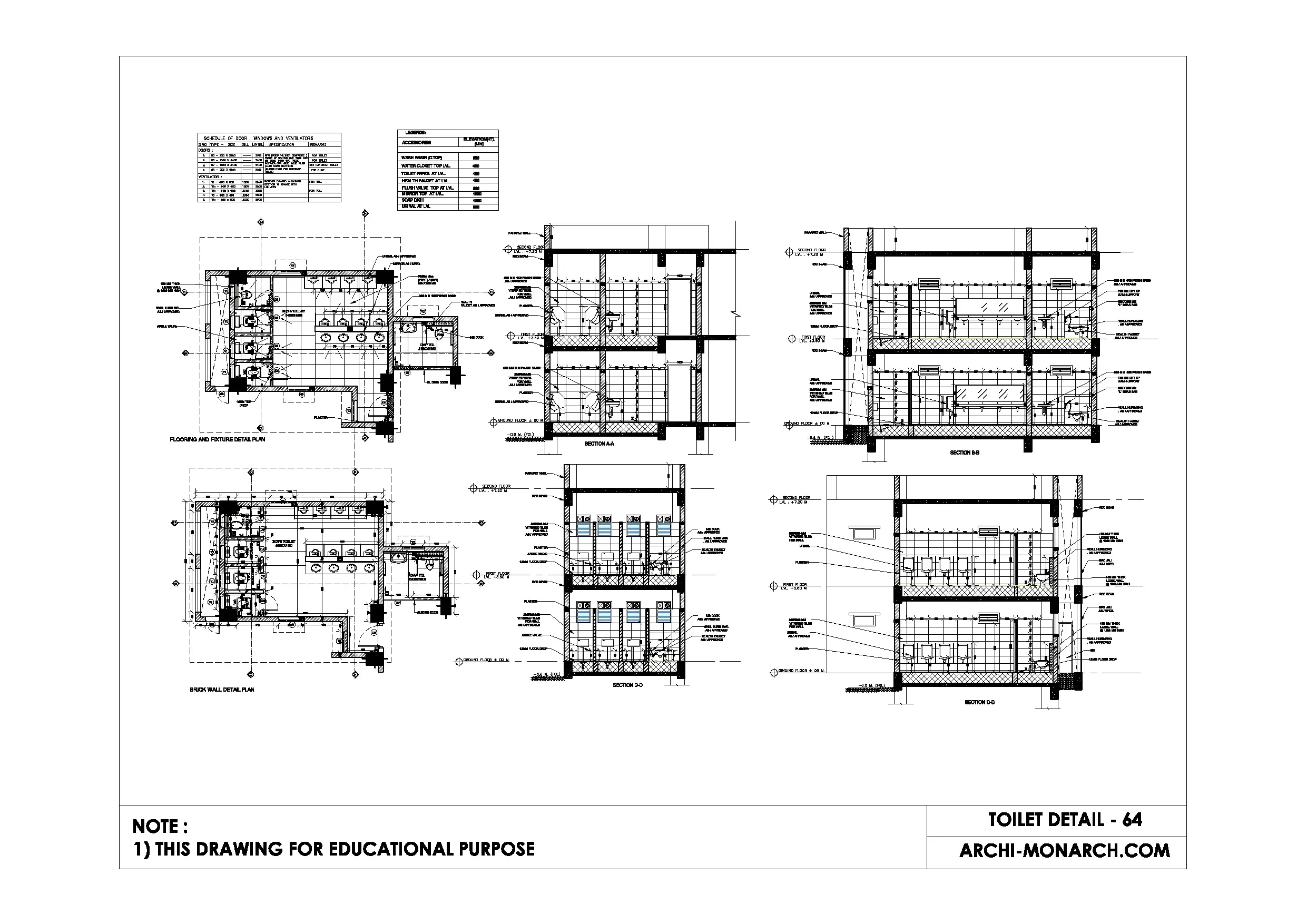
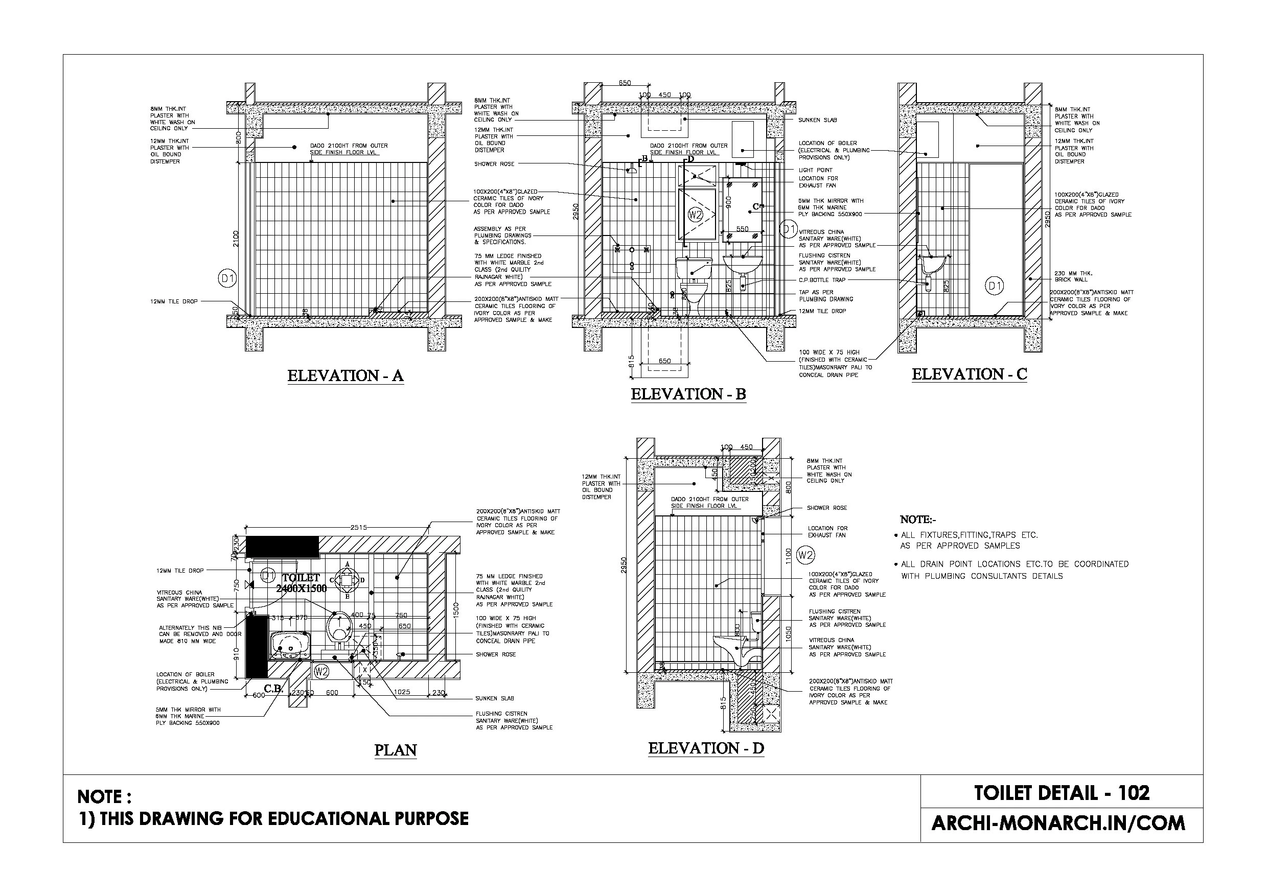
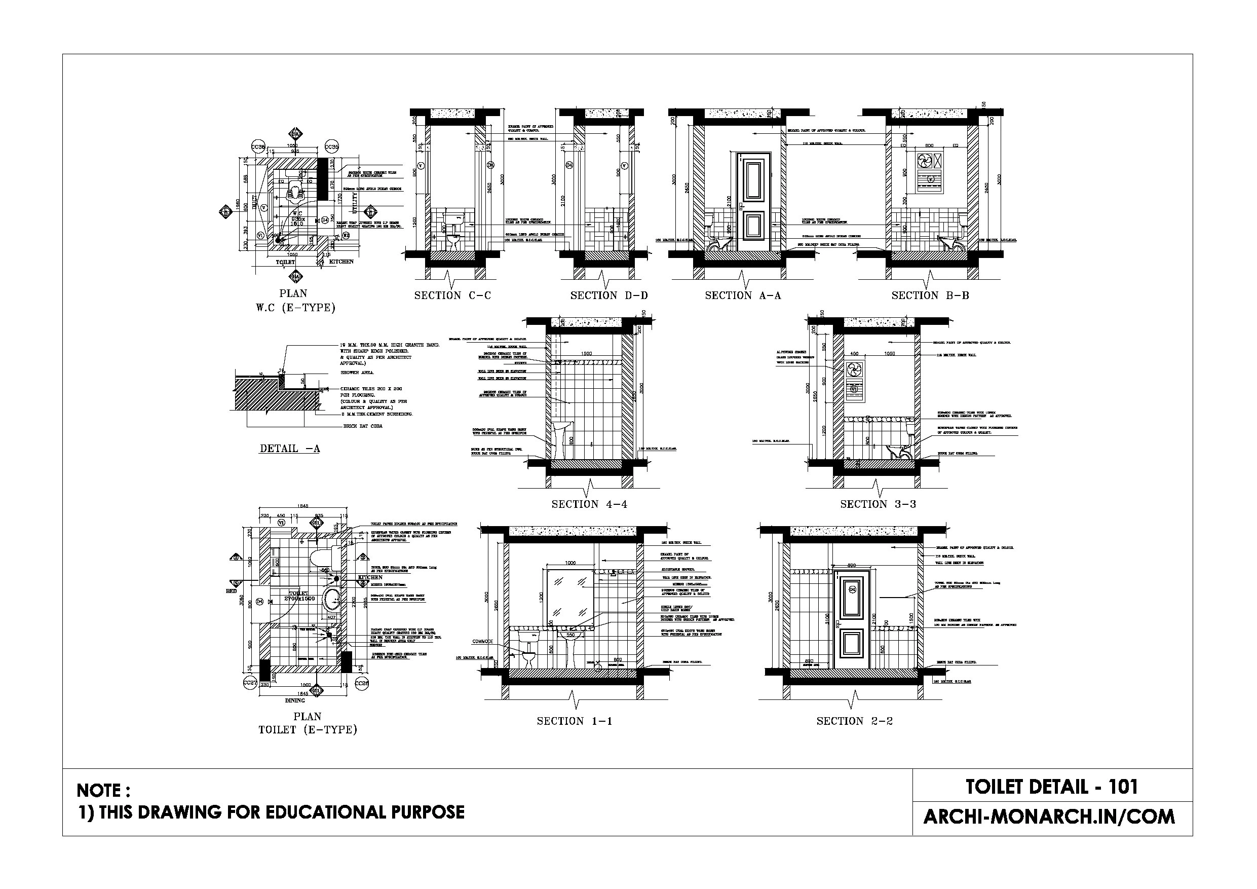
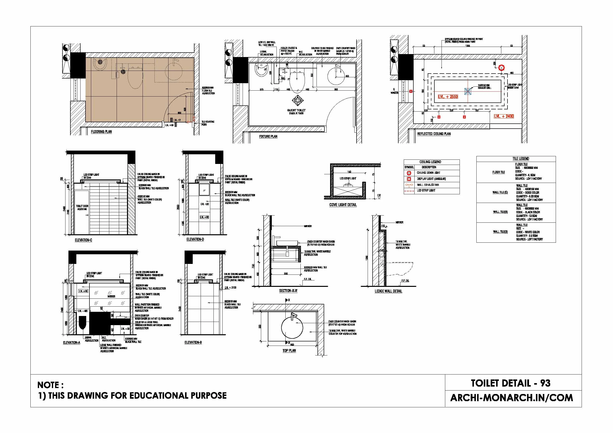
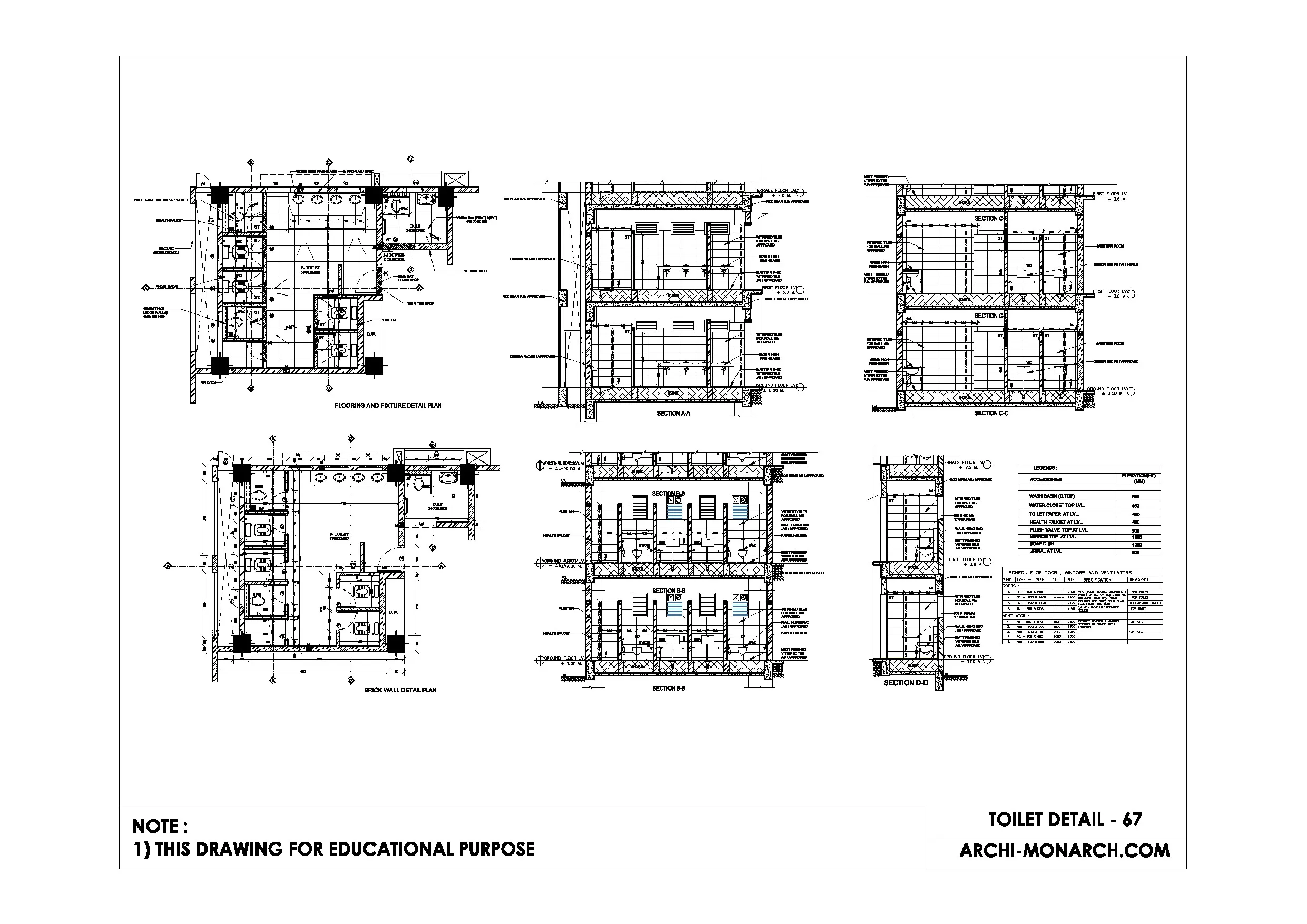
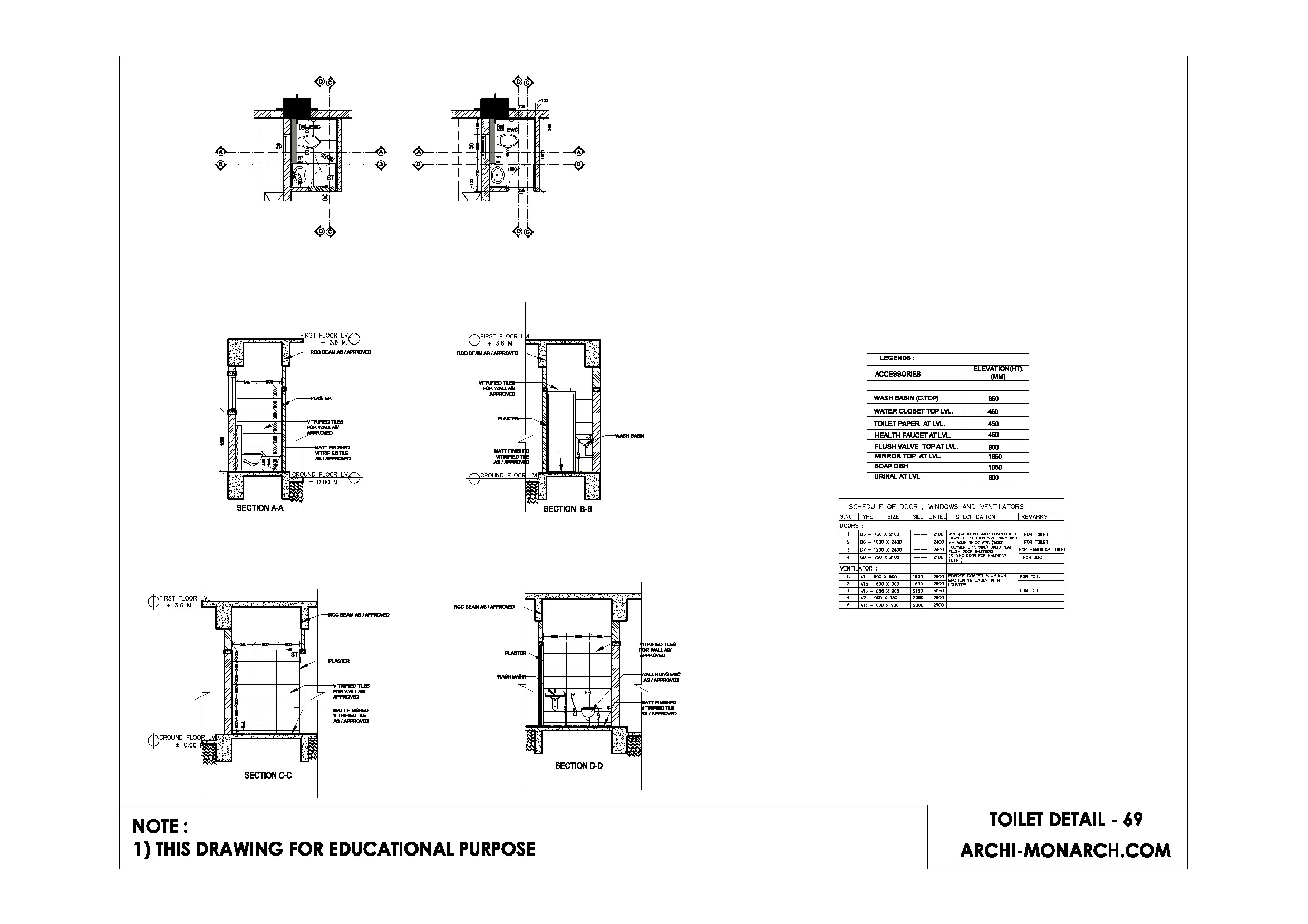
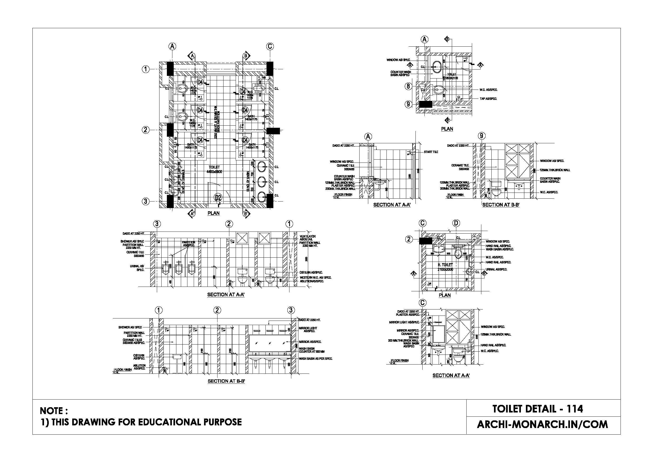
Architectural toilet detail drawings are technical drawings that provide detailed information about the design and construction of toilets in a building.
These drawings typically include information on the layout, plumbing, and electrical systems, as well as the materials and finishes to be used. They are used by architects, builders, and contractors to ensure that the toilets are constructed according to the project’s specifications and building codes.
These drawings also help to coordinate the work of different trades and ensure that the toilets are installed and finished correctly.
TOILET DRAINAGE LAYOUT
TOILET WATER SUPPLY LAYOUT
