WELCOME TO
ALL ABOUT STANDARD DETAILS
Architectural Downloadable Stuff for Beginner Architects and Students
STANDARD DETAILS
With the help of a community of architects, designers, and manufacturers as well as students they are creating a standard detail library for Archi-Monarch which is helpful for beginner architects and students.
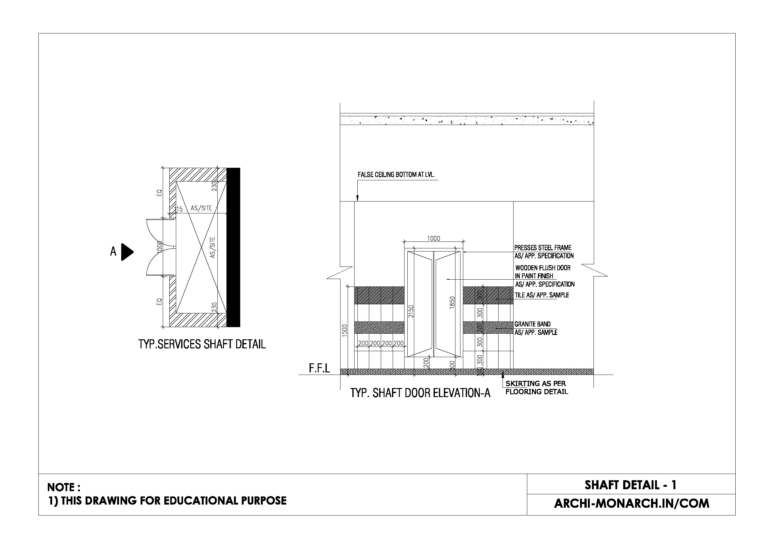
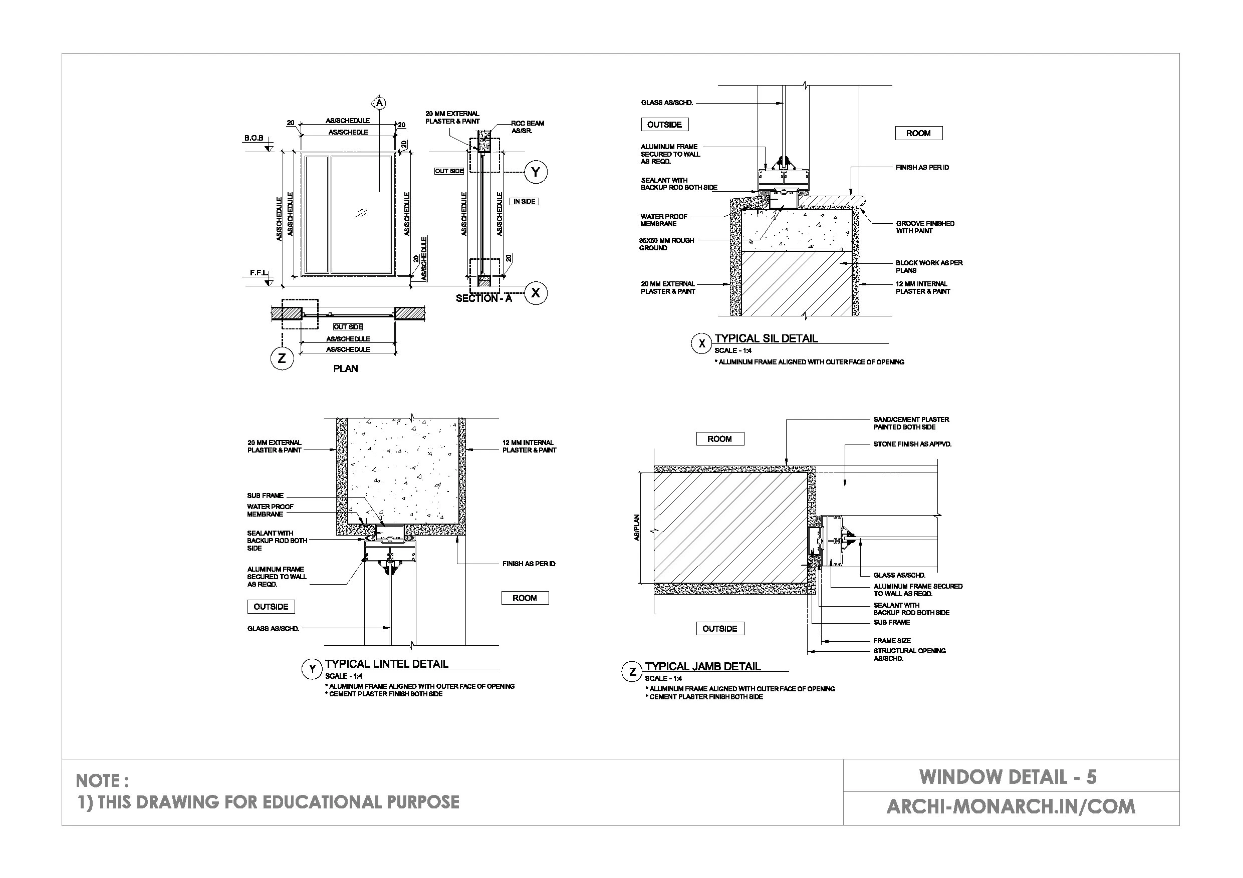
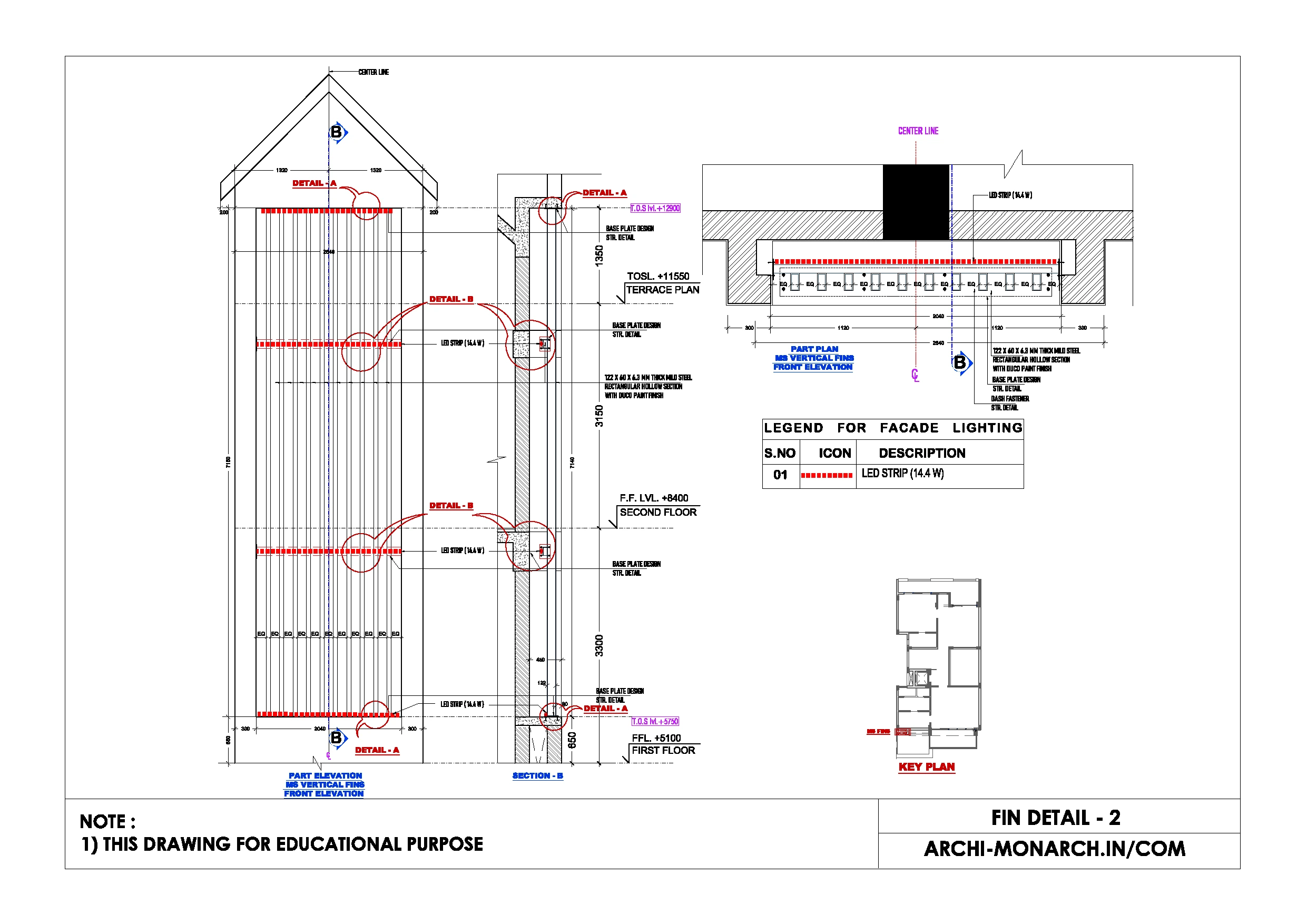
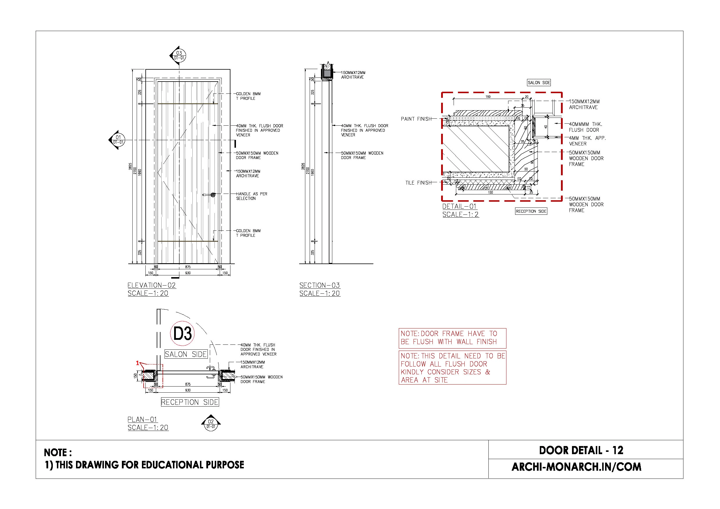
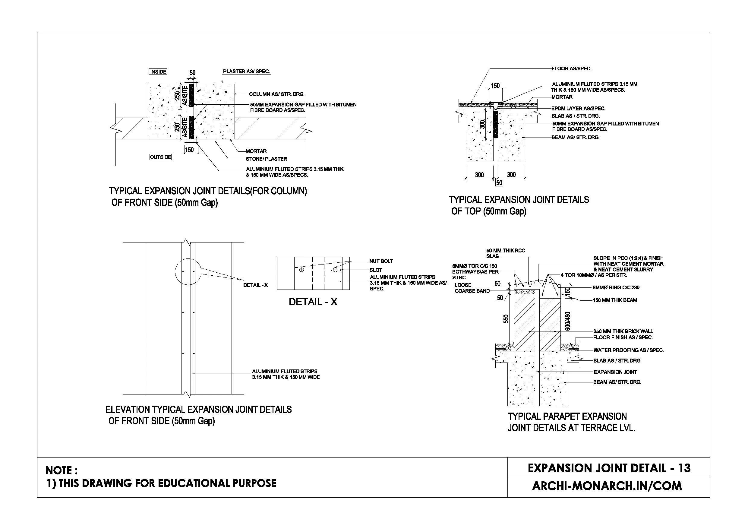
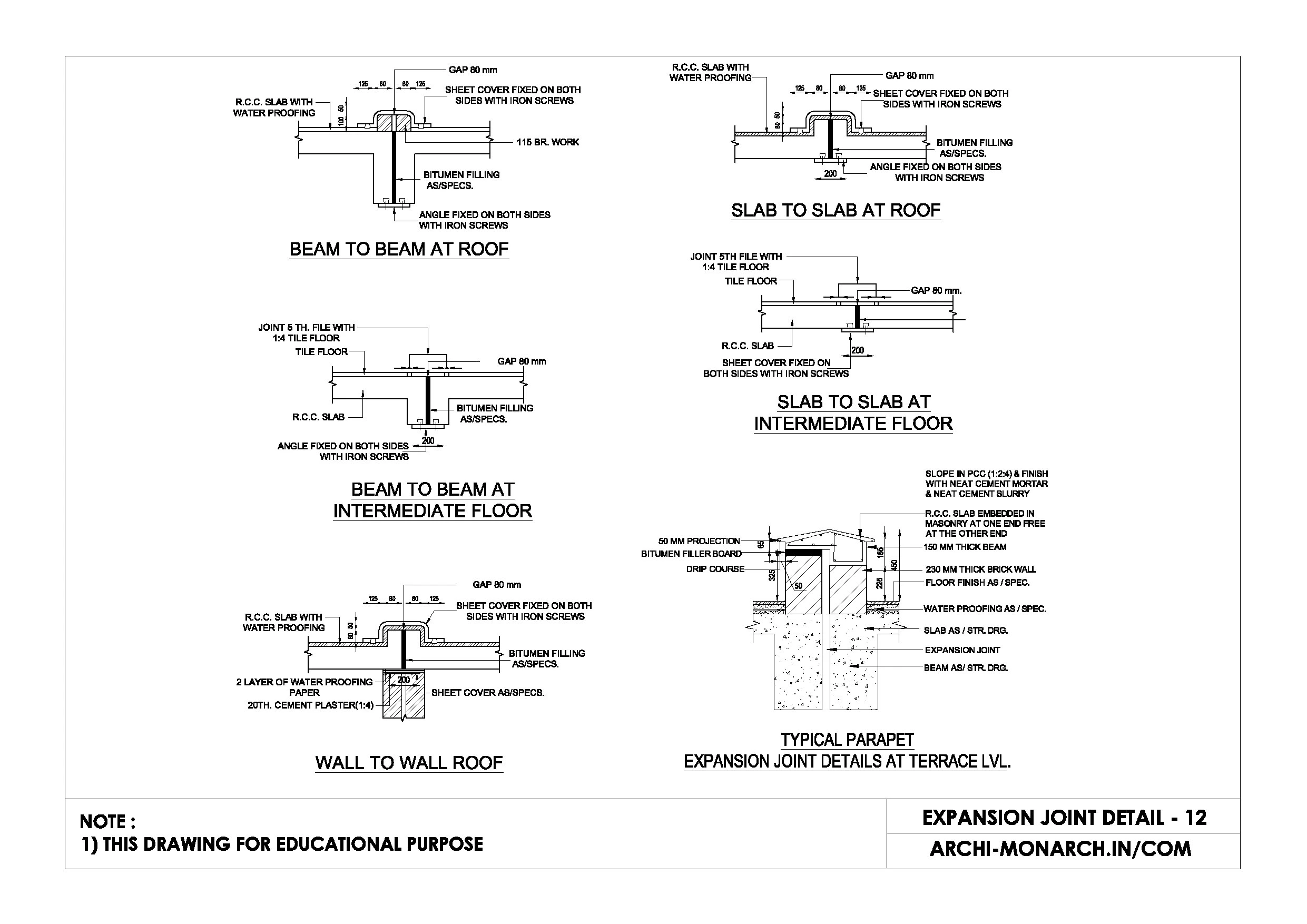
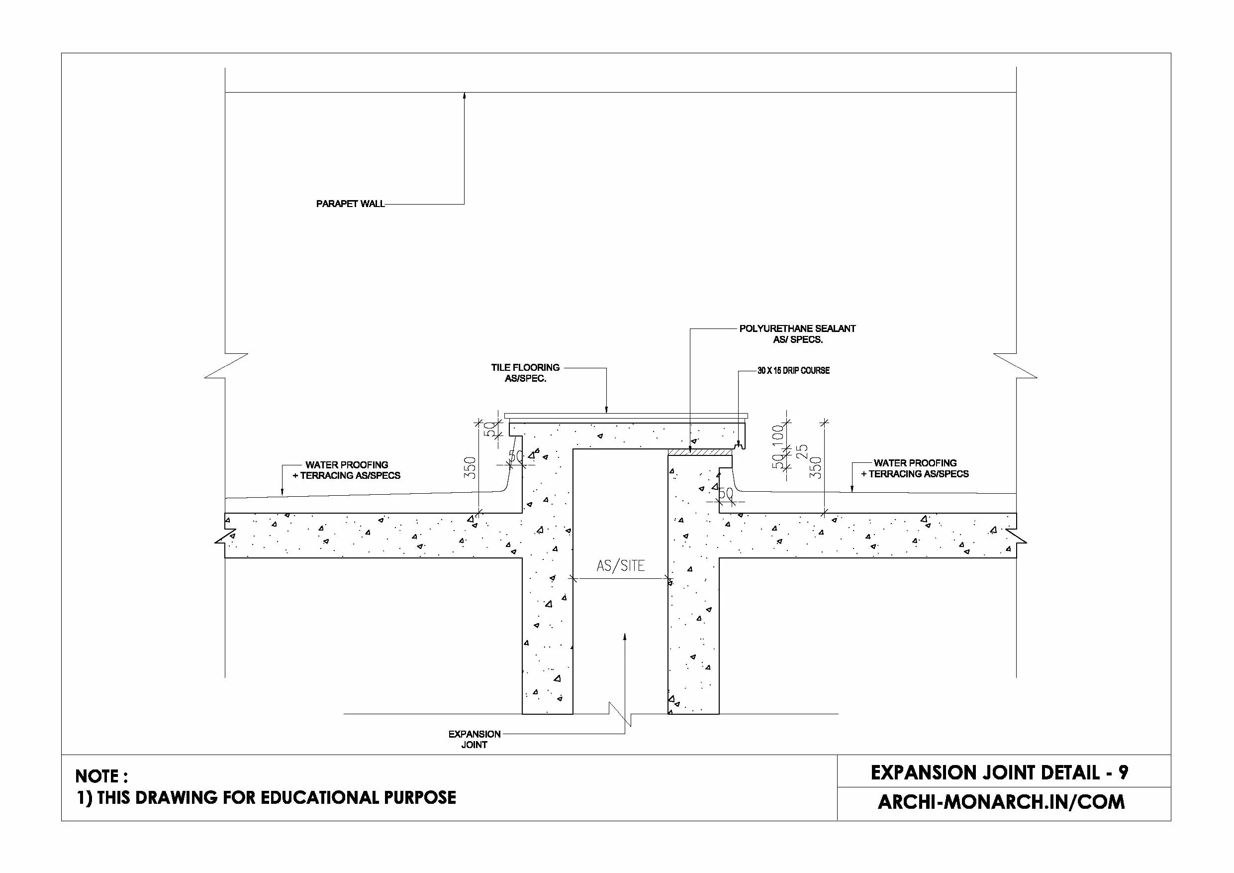
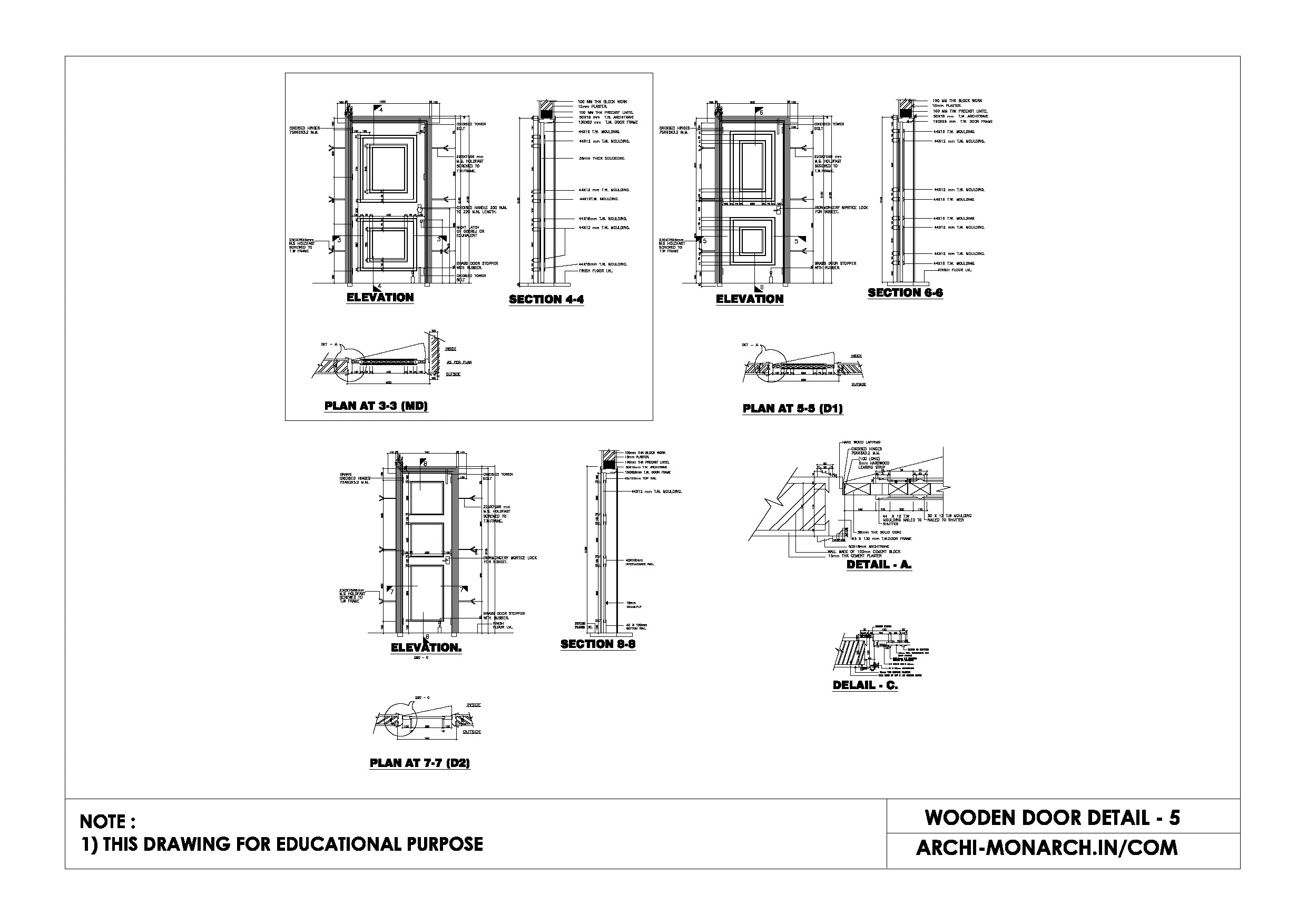
About architectural standard detail
Architectural standard detail drawings are drawings that are used during the construction of buildings to show specific details of construction that are not shown on the main architectural drawings.
These details include things like the construction of door and window openings, the installation of roofing and siding, and other specific details that are necessary for the proper construction of the building.
They are typically created by architects and are used by contractors and builders during the construction process to ensure that the building is being built according to the plans and specifications.
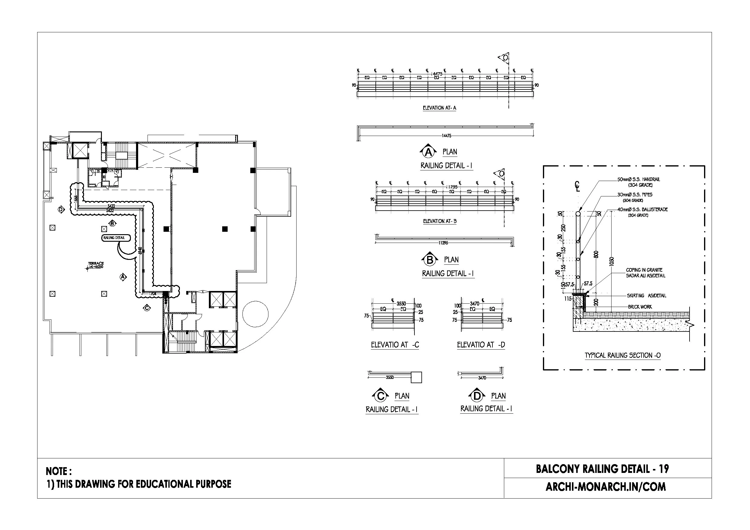
BALCONY RAILING DETAILS
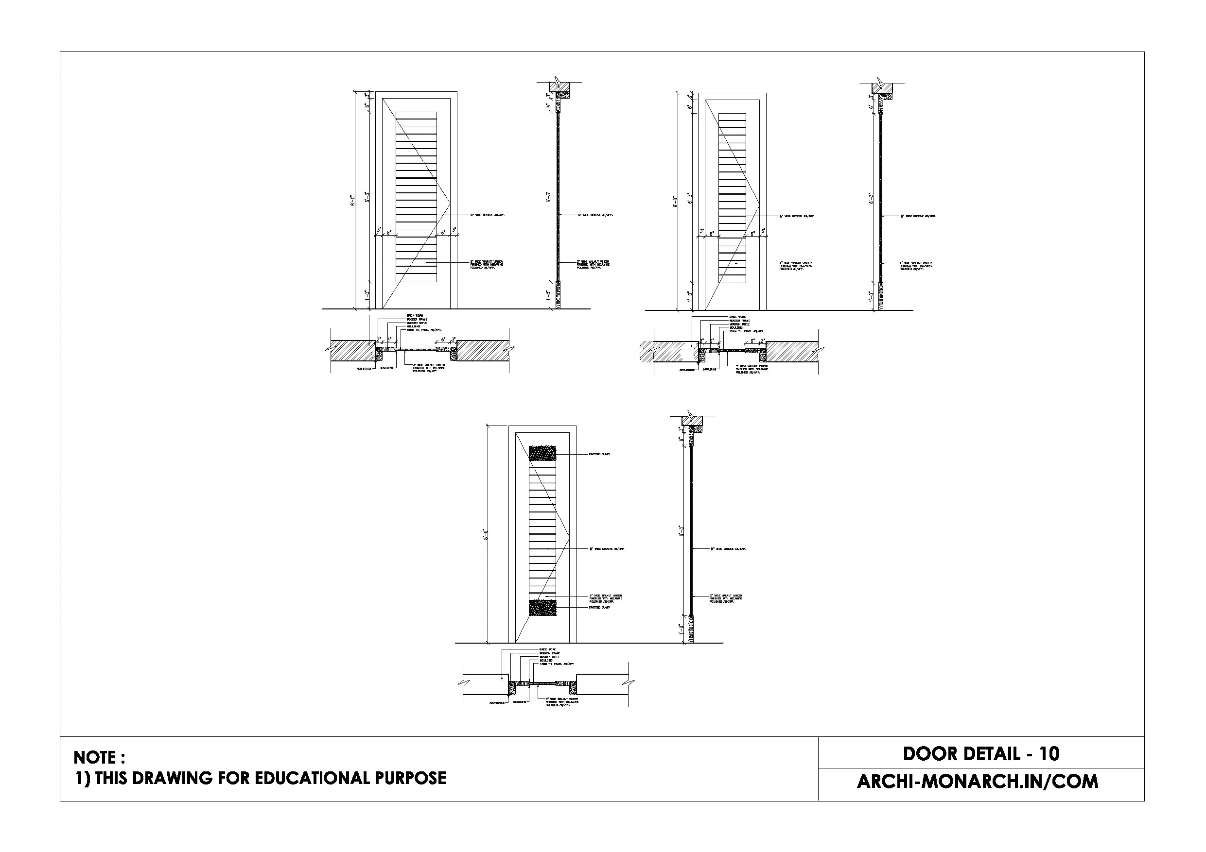
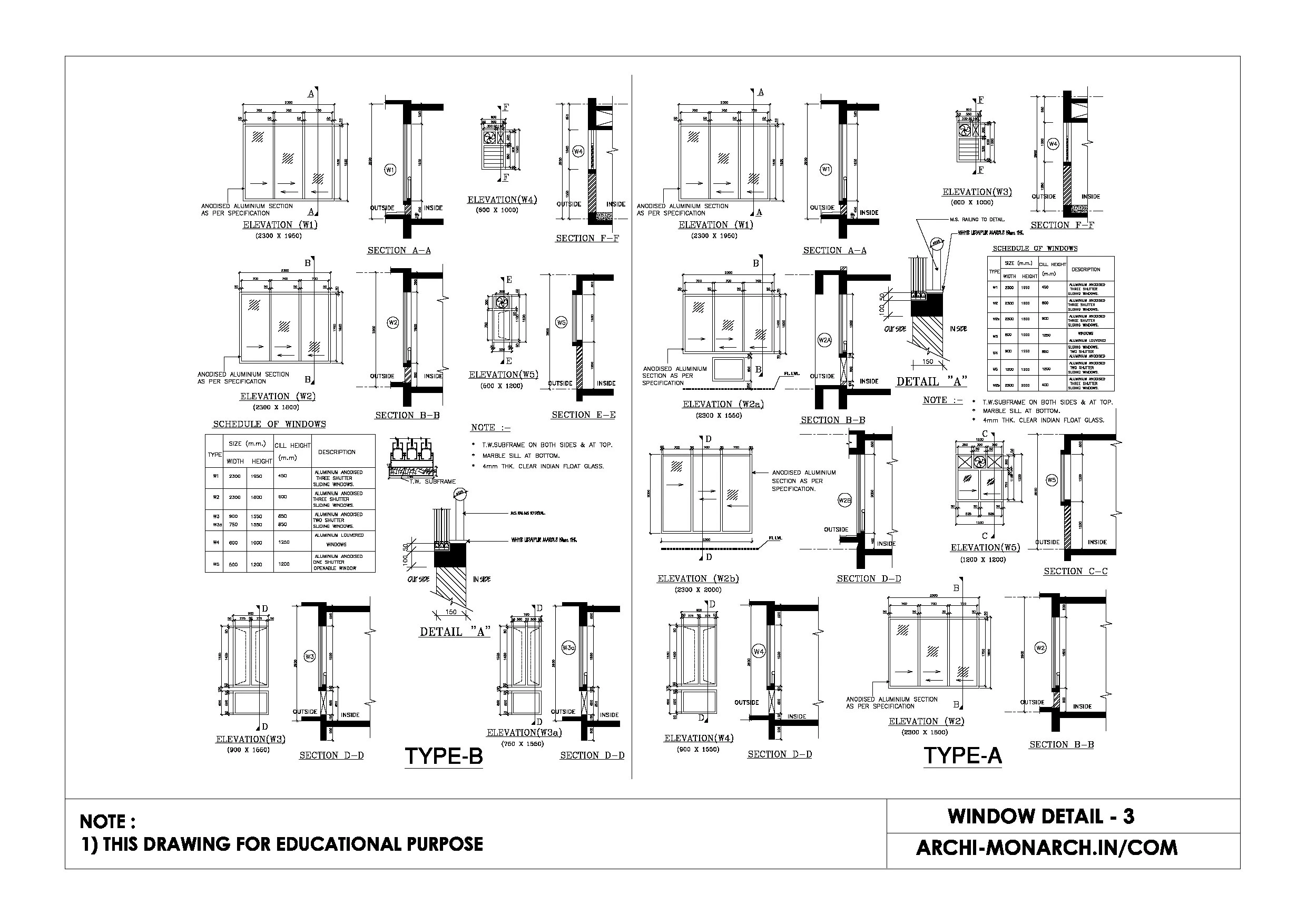
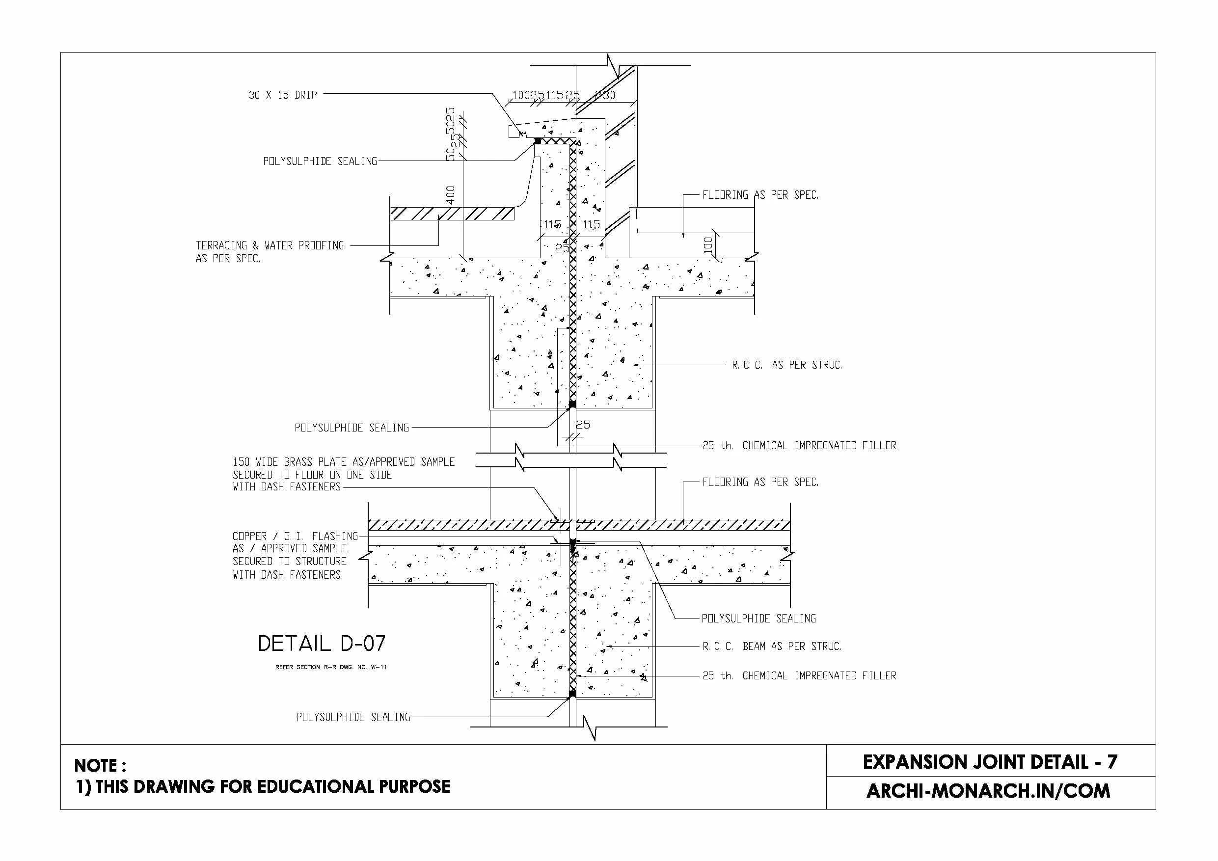
DOOR AND WINDOW DETAILS
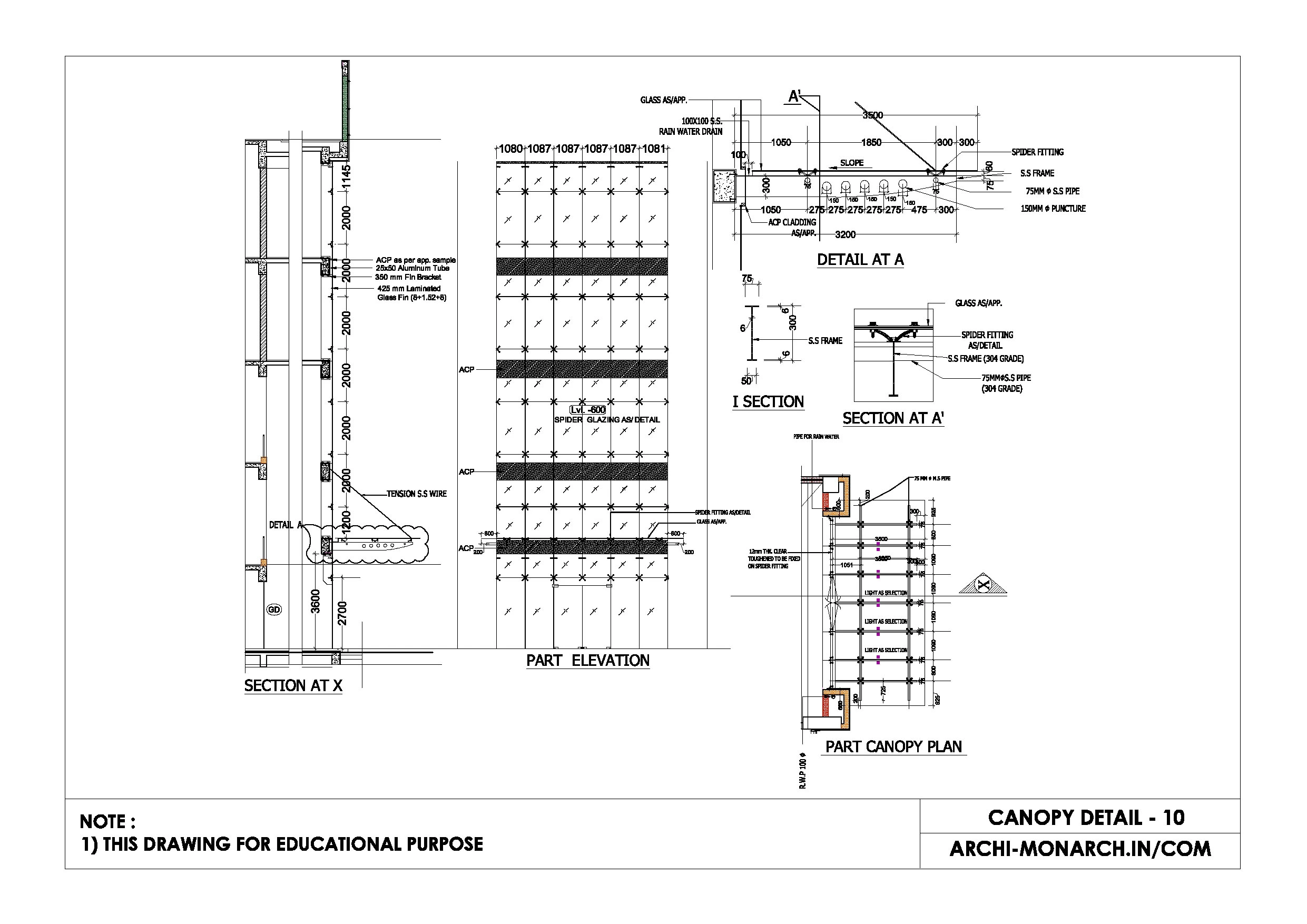
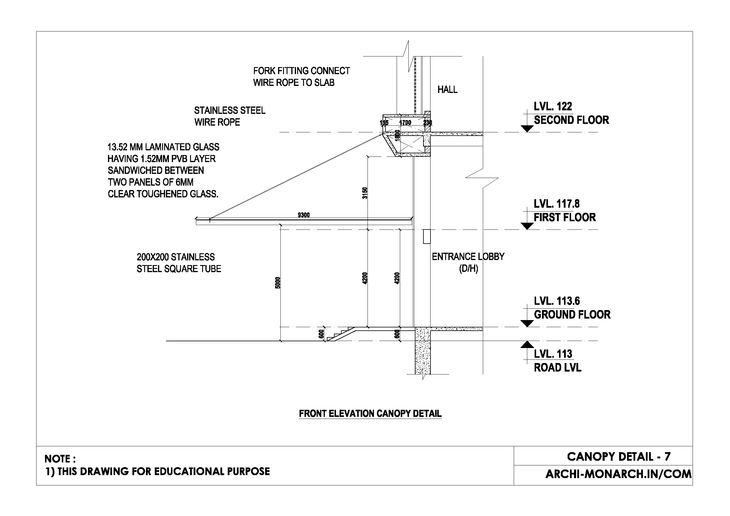
CANOPY AND PERGOLA DETAILS
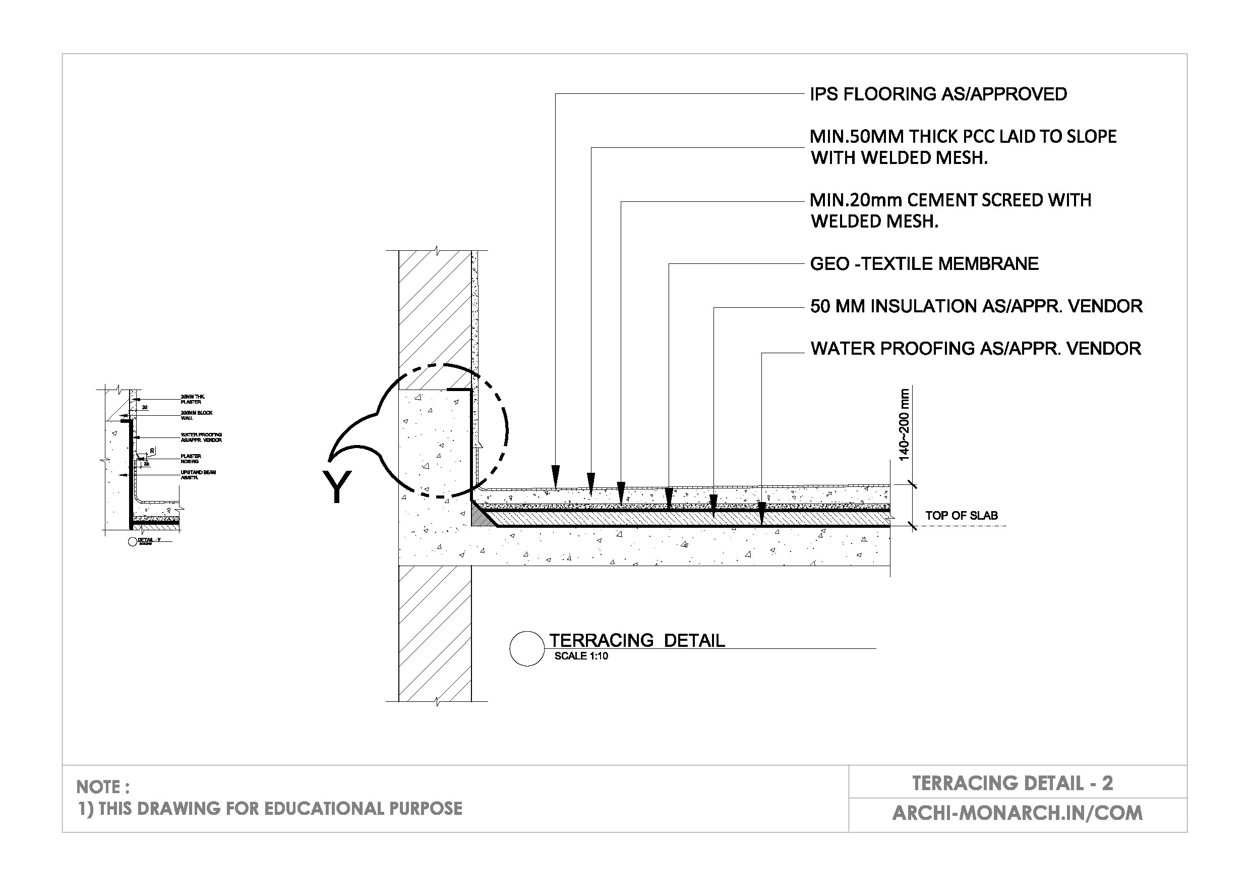
FLOORING DETAILS
TYPICAL DETAILS WITH GLAZING
