In architecture, urinals and flushing systems play a crucial role in designing efficient, hygienic, and sustainable restroom facilities. Urinals are specialized plumbing fixtures designed for the disposal of urine, typically found in public and commercial restrooms, and sometimes in residential settings.
The design and placement of urinals prioritize privacy, accessibility, and ease of maintenance. Flushing systems, on the other hand, ensure proper sanitation by washing away waste and preventing odors.
Modern flushing technologies focus on water efficiency, with options such as sensor-activated flush mechanisms, dual-flush systems, and waterless urinals that significantly reduce water consumption.
Integrating these systems into architectural design requires thoughtful planning to balance functionality, aesthetics, and environmental sustainability while meeting building codes and user comfort standards.
If you want to know about the kitchen detail or miscellaneous detail or water tank detail, please click the link.
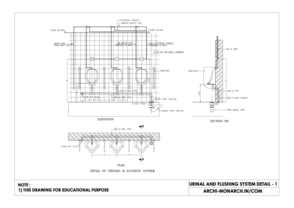
Image of Urinals and flushing systems detail and downloadable (in DWG) link below

Urinals and flushing systems detail drawing – 1
In construction, urinals and flushing systems are detailed through precise technical drawings that illustrate the placement, dimensions, materials, and plumbing connections.
Here’s a written description of the typical components and details included in such drawings:
Urinal Fixture:
- Mounting Height: Typically ranges between 600–650 mm (24–26 inches) from the finished floor to the top of the urinal rim, depending on user demographics (e.g., adult, child, or accessible designs).
- Wall Mounting: Urinals are usually wall-hung, requiring proper support with blocking or a carrier system behind the wall.
- Clearances: Side-to-side spacing between urinals is often around 600 mm (24 inches) center-to-center for comfort and privacy, with partitions for added discretion.
Water Supply:
- Flush Valve/Flushometer: Positioned 100–150 mm (4–6 inches) above the urinal, this controls the water flow for flushing. Options include manual push-button, sensor-operated, or time-delay systems.
- Supply Pipe: Typically a 15–20 mm (½–¾ inch) diameter pipe, delivering water to the flush valve.
Waste Connection:
- P-Trap or S-Trap: Installed directly beneath the urinal, these traps prevent sewer gases from entering the restroom.
- Waste Pipe: Typically 50 mm (2 inches) in diameter, connecting the urinal’s outlet to the main drainage system.
- Vent Pipe: Connected to the drainage system to prevent pressure buildup and ensure smooth wastewater flow.
Wall Construction:
- Backing and Supports: A concealed metal carrier or reinforced wall structure supports the urinal’s weight and ensures stability.
- Waterproofing: Moisture-resistant materials like cement board or waterproof membrane are applied behind the urinal to prevent water damage.
Floor and Wall Finishes:
- Tiling: Floors and walls surrounding urinals are usually tiled for easy cleaning and water resistance.
- Slope: The floor often slopes slightly towards a floor drain to prevent water pooling.
Accessibility Considerations:
- Lower Mounting Heights: For accessible urinals, the rim height is set at around 430–480 mm (17–19 inches) from the floor.
- Clear Floor Space: At least 760 mm (30 inches) of clear space in front of the urinal for wheelchair accessibility.
These details ensure proper function, ease of maintenance, and compliance with plumbing codes and accessibility standards.
Our tips to help you improve your architectural Urinal and flushing system detailing.
