SS RAILING DETAIL ONE

If you want to know about the working drawing or water tank detail or landscape detail, please click the link.


SS Railing refers to a railing made of stainless steel. Stainless steel is a popular material for railings due to its durability, strength, and resistance to corrosion.

Stainless steel railings are commonly used in both indoor and outdoor settings, such as decks, balconies, and staircases. They are also used in many commercial and industrial settings, such as in hospitals, airports, and office buildings.

Due to its durability and low maintenance requirement, it is a very popular choice among architects and builders.

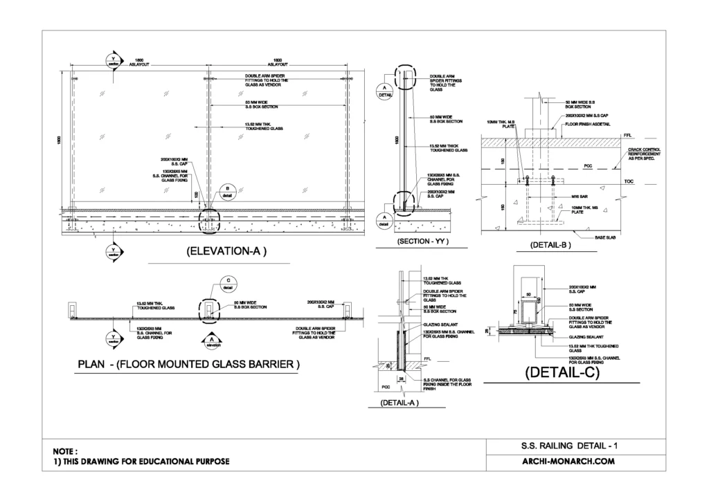
Image of SS railing detail and downloadable (in DWG) link below

SS RAILING DETAIL ONE

SS railing detail drawing – 1

A SS Railing detail drawing is a technical drawing that shows the detailed information of a stainless steel railing system. It typically includes dimensions, materials, and specifications for the various components of the railing, such as the posts, handrails, balusters, and brackets. It may also include information on the installation methods and any necessary hardware or accessories.

The drawing may be a 2D or 3D representation and can be done using computer-aided design (CAD) software. The drawing should be clear and accurate, providing all the necessary information for the fabrication and installation of the railing. It’s important for the designer to consider the building codes and safety regulations when creating the detail drawing.

It is common practice for the contractors, builders and architects to use this detail drawing as a reference during the construction phase and also for the inspection of the final product.

In addition to providing detailed information for the fabrication and installation of the railing, a SS Railing detail drawing may also include information on the finish or coating of the stainless steel, such as brushed, polished, or powder-coated. It may also include information on any special features or customizations, such as lighting, glass panels, or custom handrails.

A SS Railing detail drawing may also include notes and callouts that provide additional information or clarification on specific aspects of the railing design. These notes may include information on load-bearing capabilities, safety requirements, or design constraints.

It’s important to note that a SS Railing detail drawing is just one part of the overall design process. It should be reviewed and approved by the architect, engineer, and other relevant parties before fabrication and installation can begin.

Overall, a SS Railing detail drawing is a crucial document that provides all the necessary information for the fabrication, installation, and inspection of a stainless steel railing system, ensuring that the final product meets the safety requirements and design intent.


Our tips to help you improve your architectural SS railing detailing.



Purchase (SS railing detail) link below for download

error: Content is protected !!