Construction details refer to specific aspects of a construction project that provide information about how various building elements should be designed, constructed, and assembled.
These details can include information about materials, sizes, shapes, and connections, as well as details about finishes, fixtures, and other features. They are typically depicted in drawings or documents, and may be accompanied by written descriptions or specifications.
Construction details are an important part of the design process and play a critical role in ensuring that a project is built to the necessary standards of quality, safety, and performance.
If you want to know about the staircase detail or toilet detail or water tank detail, please click the link.
Image of constructions detail and downloadable (in DWG) link below

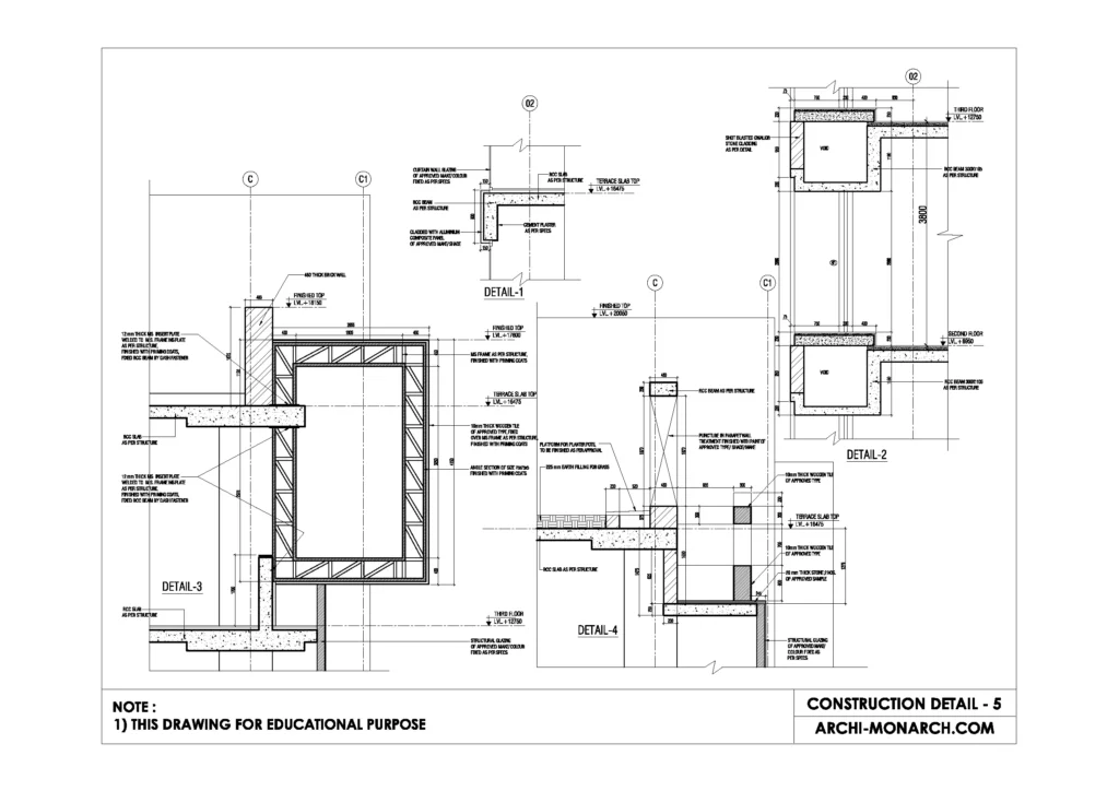
Constructions detail drawing – 5
Constructions detail drawings are drawings that show detailed information about how specific building elements should be designed, constructed, and assembled. These drawings can include information about materials, sizes, shapes, and connections, as well as details about finishes, fixtures, and other features.
They are typically used in conjunction with other construction drawings, such as architectural drawings and structural drawings, to provide a complete understanding of a construction project.
Constructions detail drawings may include sections, elevations, and details of various building elements, such as foundations, walls, floors, roofs, doors, windows, and finishes. They may also include details about mechanical, electrical, and plumbing systems, as well as other specialized systems and features.
Constructions detail drawings are typically created by architects, engineers, and other design professionals, and are used by contractors, subcontractors, and other construction personnel to guide the construction process.
Constructions detail drawings are an important part of the design and construction process, as they provide specific and detailed information about how various building elements should be constructed.
These drawings can be used to ensure that a project is built to the necessary standards of quality, safety, and performance, and can help to minimize errors and misunderstandings during constructions.
In addition to providing information about the physical constructions of a building, construction detail drawings may also include information about materials, finishes, and other aesthetic features. They may also include information about energy efficiency, sustainability, and other performance considerations.
Our tips to help you improve your architectural construction detailing.
