WELCOME TO
ALL ABOUT MISCELLANEOUS DETAILS
Architectural Downloadable Stuff for Beginner Architects and Students
MISCELLANEOUS DETAILS
With the help of a community of architects, designers, and manufacturers as well as students they are creating a miscellaneous details library for Archi-Monarch which is helpful for beginner architects and students.
About Architectural miscellaneous detail
Architectural miscellaneous detail drawings are a type of technical drawing that provide specific information about various components and systems used in the construction of a building.
These drawings are typically used to supplement the main architectural plans and elevations, and can include details related to roofing, flooring, walls, doors, windows, electrical systems, and more.
They are used by architects, engineers, contractors, and other construction professionals to ensure that all aspects of the building’s design are properly executed during construction.
GUARD AND METER ROOM DETAILS
REFERENCE FOR ELEVATION DESIGN
STRUCTURE GLAZING DETAILS
CONSTRUCTION DETAILS
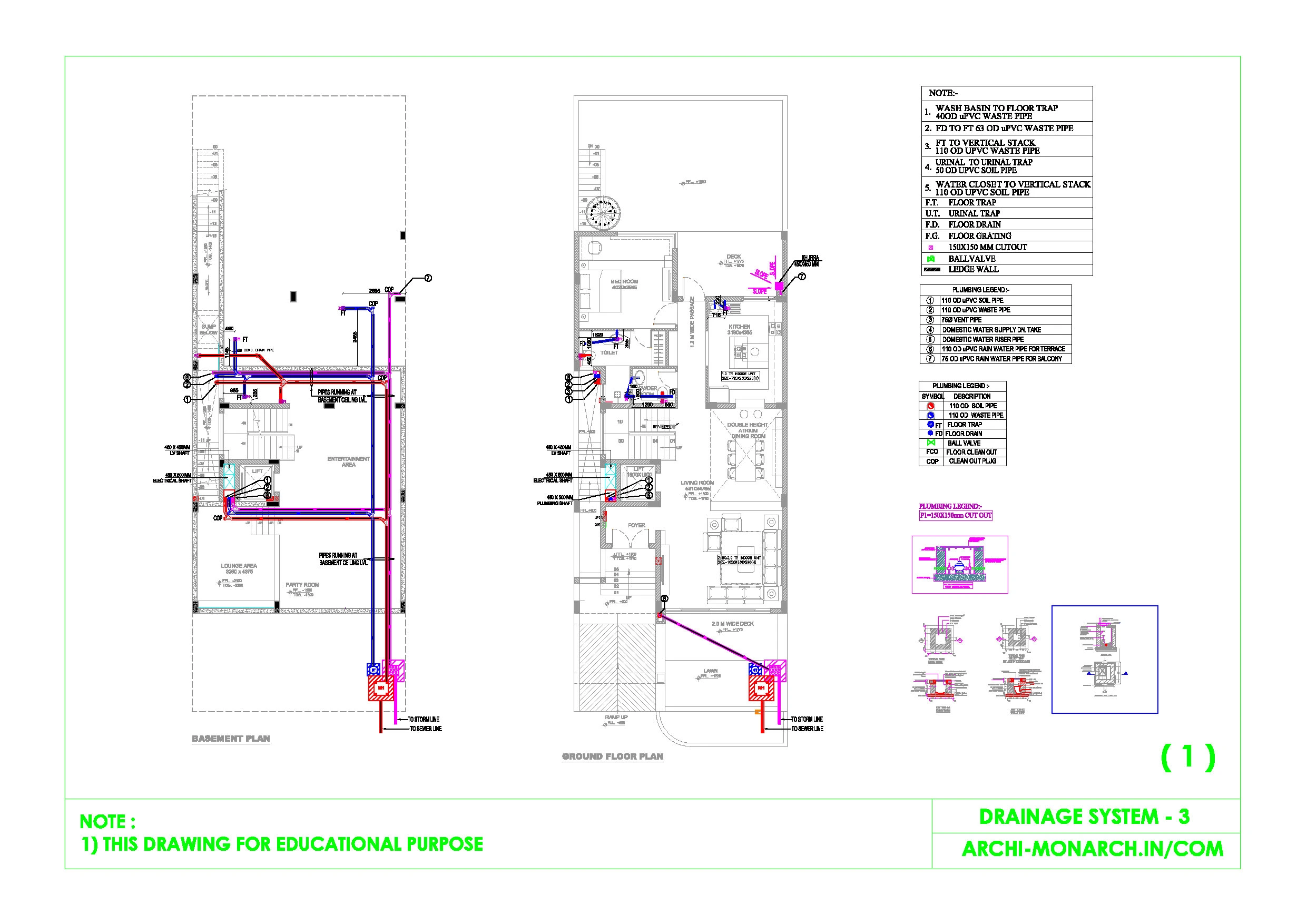
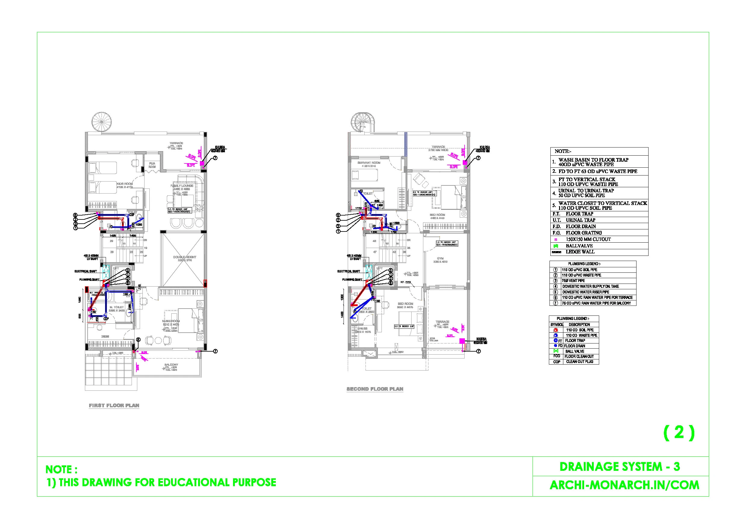
PLUMBING DRAWING DETAILS
ELECTRICAL DRAWING DETAILS























