Description
The Sick Bay Room Detail provides a professionally prepared architectural drawing set in DWG format for educational and reference purposes. Sick bay rooms serve as essential healthcare support spaces in schools, offices, and institutions, where individuals receive first aid and short-term care. Designers must plan these spaces carefully to ensure comfort, hygiene, and accessibility. Therefore, architecture students and drafting professionals must understand sick bay room detailing to design safe and efficient healthcare interiors.
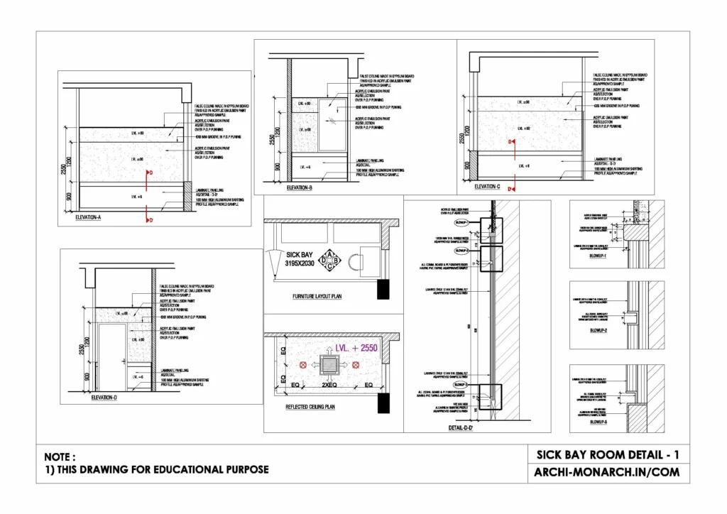
This architectural CAD package clearly presents sick bay room design through detailed drawings. It includes plan layouts, furniture arrangements, elevations, and key interior details in a structured and coordinated format. The drawing set explains bed placement, circulation flow, and zoning for patient care and staff movement. It also highlights interior elements such as patient beds, seating arrangements, storage cabinets, medical counters, and wash areas. In addition, it covers lighting design, ventilation, and interior finishes that support hygiene and patient comfort. As a result, users gain practical insight into designing sick bay rooms that improve usability, safety, and healthcare functionality.
Moreover, the drawings follow professional architectural and interior drafting standards. They use accurate dimensions, clear line hierarchy, and well-organized annotations. Consequently, students can easily interpret the drawings and apply similar detailing techniques in academic projects and CAD exercises. Users can edit the files freely to modify layouts, adjust bed arrangements, or refine interior elements to explore different design solutions.
The DWG format ensures seamless compatibility with AutoCAD and other commonly used CAD software. Therefore, users can directly integrate these drawings into project workflows, presentations, and documentation sets without additional conversion. In addition, the drawing set supports coordination between architectural layouts, interior design, and service planning, which improves drafting clarity and technical accuracy.
Key Highlights:
- Sick bay room detail drawing in DWG format
- Intended strictly for educational and reference use
- Includes plan layout, bed arrangement, and interior elevations
- Shows patient care zoning and circulation flow
- Covers medical furniture, lighting, ventilation, and hygiene-focused finishes
- Prepared using professional architectural and interior drafting standards
- Fully editable and AutoCAD-compatible CAD files
- Suitable for architecture students and drafting learners
This drawing set does not serve as a construction-ready document. Always consult qualified architects and healthcare design professionals before applying any detail in real projects.








Reviews
There are no reviews yet.