A classroom in architecture is a fundamental space designed to facilitate learning and interaction between students and instructors. It is typically characterized by a layout that promotes visibility, acoustics, and comfort, ensuring an environment conducive to education.
Classrooms often include desks or tables, chairs, writing boards, and technology such as projectors or smartboards. Natural lighting, ventilation, and acoustical control are crucial architectural considerations to enhance concentration and reduce distractions.
Flexibility in design has become increasingly important, allowing the space to be adapted for various teaching styles, group sizes, and technological integration.
If you want to know about the kitchen detail or miscellaneous detail or water tank detail, please click the link.
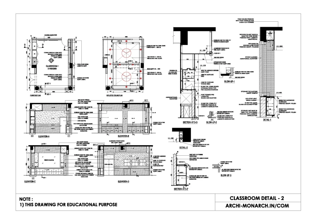
Image of Classroom detail and downloadable (in DWG) link below

Classroom detail drawing – 2
In construction, a classroom detail drawing refers to a precise and scaled architectural representation that illustrates specific components and construction elements of a classroom. These drawings are essential for ensuring that the design is executed accurately during the building process.
They typically include:
- Floor Plan – Shows the layout of furniture, walls, doors, windows, and circulation within the classroom.
- Section Drawings – Cut-through views that reveal the vertical relationships between elements like floor, ceiling, and roof structure.
- Elevations – Interior and exterior views that show wall finishes, window heights, board placement, shelving, and storage units.
- Material Details – Specifications of flooring (like vinyl or tiles), wall finishes (paint, acoustic panels), ceiling systems (suspended or gypsum board), and joinery.
- Furniture Layout – Placement of desks, chairs, teacher’s table, and any built-in furniture.
- Electrical and Mechanical Details – Locations of lights, fans, air conditioning units, switches, sockets, and network/data points.
- Acoustic and Lighting Details – Special features for sound insulation or daylight optimization.
- Accessibility Features – Compliance with standards for inclusive design such as ramp access, wider doorways, and adjustable furniture.
These detail drawings ensure coordination between different building systems (structural, MEP, finishes) and help builders, engineers, and interior designers implement the architect’s vision effectively.
Our tips to help you improve your architectural Classroom detailing.
