An architectural water tank is a type of water storage tank that is designed to be incorporated into the design of a building or structure. These tanks are often used to store rainwater, greywater, or other types of non-potable water that can be used for irrigation, toilet flushing, and other non-drinking purposes.
They can be made from a variety of materials, including concrete, metal, and plastic, and are typically designed to be aesthetically pleasing as well as functional.
Some architectural water tanks are designed to be visible, while others are hidden within the structure of the building. They can be used in a variety of settings, including residential, commercial, and industrial buildings.
If you want to know about the staircase detail or standard detail or toilet detail, please click the link.
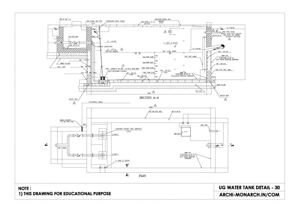
Image of UG tank detail and downloadable (in DWG) link below

Underground water tank detail drawing – 30
An underground water tank is a storage tank for water that is underground. It is typically cylindrical in shape and may be constructed of concrete, fiberglass, or plastic. Some underground water tanks also have a layer of insulation to help reduce heat loss and keep the water at a constant temperature.
To create a detailed drawing of an underground water tank, you will need to gather information about the size and capacity of the tank, as well as any additional features such as insulation or filtration systems. You will also need to consider the location of the tank, including the surrounding soil and the water table.
In your drawing, be sure to include the following details:
- Dimensions of the tank (length, width, and height)
- Material of construction
- Capacity of the tank (in gallons or liters)
- Inlet and outlet locations
- Any additional features or systems, such as filtration or pumping equipment
- Surrounding soil conditions and the water table level
You may also want to include cross-sectional views of the tank to show its construction and any additional features more clearly.
Our tips to help you improve your architectural UG Tank detailing.
