Staircase Detail Forty One – Architectural Staircase Detail Drawing | Archi-Monarch

Staircase Detail Forty One

Original price was: ₹75.0.Current price is: ₹49.0.
Downloadable Architectural Resources for Beginner Architects and Students
Sale!
Previous
Staircase Detail Forty – Architectural Staircase Detail Drawing | Archi-Monarch

Staircase Detail Forty

Original price was: ₹125.0.Current price is: ₹99.0.
Next

Staircase Detail Forty Two

Original price was: ₹75.0.Current price is: ₹49.0.
Staircase Detail Forty Two – Architectural Staircase Detail Drawing | Archi-Monarch

Staircase Detail Forty One

Original price was: ₹75.0.Current price is: ₹49.0.

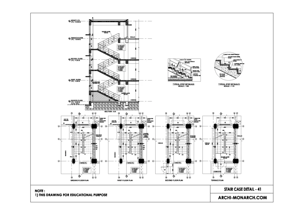
Architectural Staircase Detail in DWG format for educational and reference use. This standard CAD drawing helps architecture students and beginner architects understand staircase design principles, dimensions, and construction detailing. Ideal for learning, drafting practice, and academic reference.

Hurry up! Flash Sale Ends Soon!
00
DAYS
00
HOURS
00
MINS
00
SECS
Add to Wishlist
Add to Wishlist

Description

The Staircase Detail is a professionally drafted architectural standard drawing in DWG format, created specifically for educational and reference use only. Staircases play a vital role in vertical circulation, safety, and spatial planning within buildings. Therefore, understanding their layout, dimensions, and construction details is essential for architecture students and beginner architects.

This downloadable Architectural Staircase Detail DWG clearly illustrates essential staircase components such as risers, treads, landings, handrails, and structural connections. Moreover, the drawing follows standard architectural drafting practices, making it easier for learners to understand how staircases are represented in professional construction drawings. As a result, students can improve both their technical knowledge and drafting accuracy.

In addition, this staircase detail is useful for academic projects, studio submissions, and CAD practice exercises. It helps learners visualize correct proportions, level differences, and detailing methods commonly used in residential and commercial buildings. Furthermore, the DWG format allows easy access, editing, and analysis using AutoCAD or compatible CAD software, which supports hands-on learning.

Key Highlights:

  • Architectural Staircase Detail in DWG format
  • Prepared for educational and reference purposes only
  • Includes standard staircase components such as risers, treads, landings, and handrails
  • Drafted using professional architectural drawing standards
  • Suitable for architecture students, beginners, and drafting practice
  • Easy to open, study, and edit in AutoCAD-compatible software
  • Helpful for academic projects, learning exercises, and detail libraries

Although this drawing follows commonly accepted architectural standards, it should not be used as a substitute for professional architectural or structural services. Users should always consult qualified professionals for real-world construction and execution.

Overall, this Staircase Detail DWG serves as a valuable learning resource that supports architectural education and enhances understanding of staircase design fundamentals. It also helps users build confidence in creating clear, accurate, and professional architectural drawings.

Reviews

There are no reviews yet.

Be the first to review “Staircase Detail Forty One”

Your email address will not be published. Required fields are marked *

Related Drawings

Recently Viewed Drawings

Discount Coupons

Grab exclusive discount coupons and enjoy premium architectural resources at reduced prices.

Staircase Detail Forty One – Architectural Staircase Detail Drawing | Archi-Monarch

Staircase Detail Forty One

Original price was: ₹75.0.Current price is: ₹49.0.
Archi-Monarch Site Logo – Architectural Design Resource Platform
Archi-Monarch

Archi-Monarch is an educational architectural knowledge-sharing platform. All content is provided for learning and reference purposes only.

Copyright © 2026 Archi-Monarch. All Rights Reserved.

Shopping cart

0
image/svg+xml

No drawings in the cart.

error: Content is protected !!