If you want to know about the working drawing or miscellaneous detail or landscape detail, please click the link.
An architectural ramp is a sloping surface designed for wheelchair users, people with strollers, or people with mobility impairments to access a building or other structure.
Ramps may be permanent or temporary, and they can be made of a variety of materials such as concrete, wood, or metal.
Ramps can be located outside or inside a building and are often required by law to be included in new construction or renovations in order to make a building accessible to people with disabilities.
Some common features of architectural ramps include handrails, landings, and surface treatments to provide traction and prevent slipping.
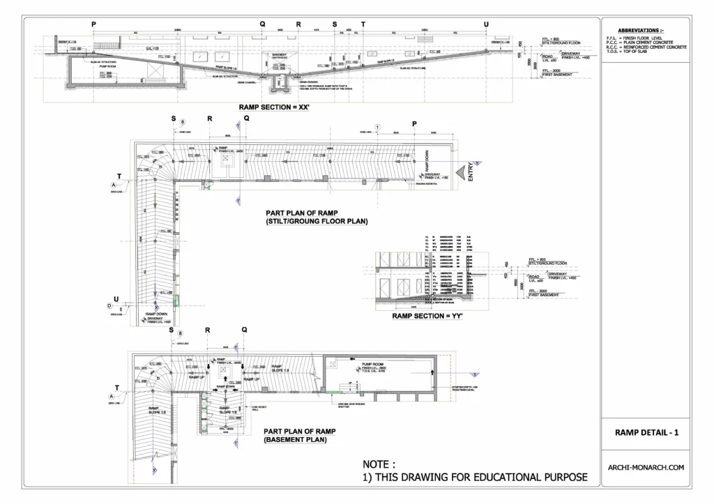
Image of ramp detail and downloadable (in DWG) link below

Ramps detail drawing – 1
A ramps detail drawing is a technical drawing that shows all the necessary information for the construction of a ramps. It typically includes a plan view of the ramps, as well as cross-sectional views and elevations.
The drawing should include the size and slope of the ramps, the location and size of any landings, the type and size of the materials to be used, and any special details such as handrails or surface treatments.
It may also include details about the foundation and how the ramp will be anchored to it. The drawing should be clear and accurate, and it should follow all relevant building codes and standards for accessibility.
Here are a few more things that may be included in a ramps detail drawing:
- Dimensions: The drawing should include the overall length, width, and slope of the ramp, as well as the size of any landings.
- Materials: The drawing should specify the type and size of materials to be used for the ramp and its foundation, including the type of concrete or other surface treatment.
- Handrails: If the ramp will have handrails, the drawing should show their location, size, and shape. It should also show any details about how the handrails will be anchored to the ramp.
- Guardrails: If the ramp is more than 30 inches above the ground, it may be required to have guardrails to prevent falls. The drawing should show the location, size, and shape of the guardrails.
- Lighting: If the ramp will be used at night or in low-light conditions, the drawing should show the location and type of lighting to be installed.
- Drainage: If the ramp is outdoors, the drawing should show how water will be drained away from the ramp to prevent pooling and slipping hazards.
Our tips to help you improve your architectural ramp detailing.
