If you want to know about the photoshop library or miscellaneous detail or working drawing, please click the link.
A lift lobby is a space in a building where the elevators (also known as lifts) are located. It is typically found near the main entrance of the building and serves as the access point for the elevators.
The lift lobby is often an important circulation space, as it is used by people to get to and from the various floors of the building. In terms of design, the lift lobby may be decorated and furnished in a way that is consistent with the overall design of the building.
It may also include features such as seating, mirrors, and artwork to make it more welcoming and comfortable for people who use it.
Image of lift lobby’s detail and downloadable (in DWG) link below

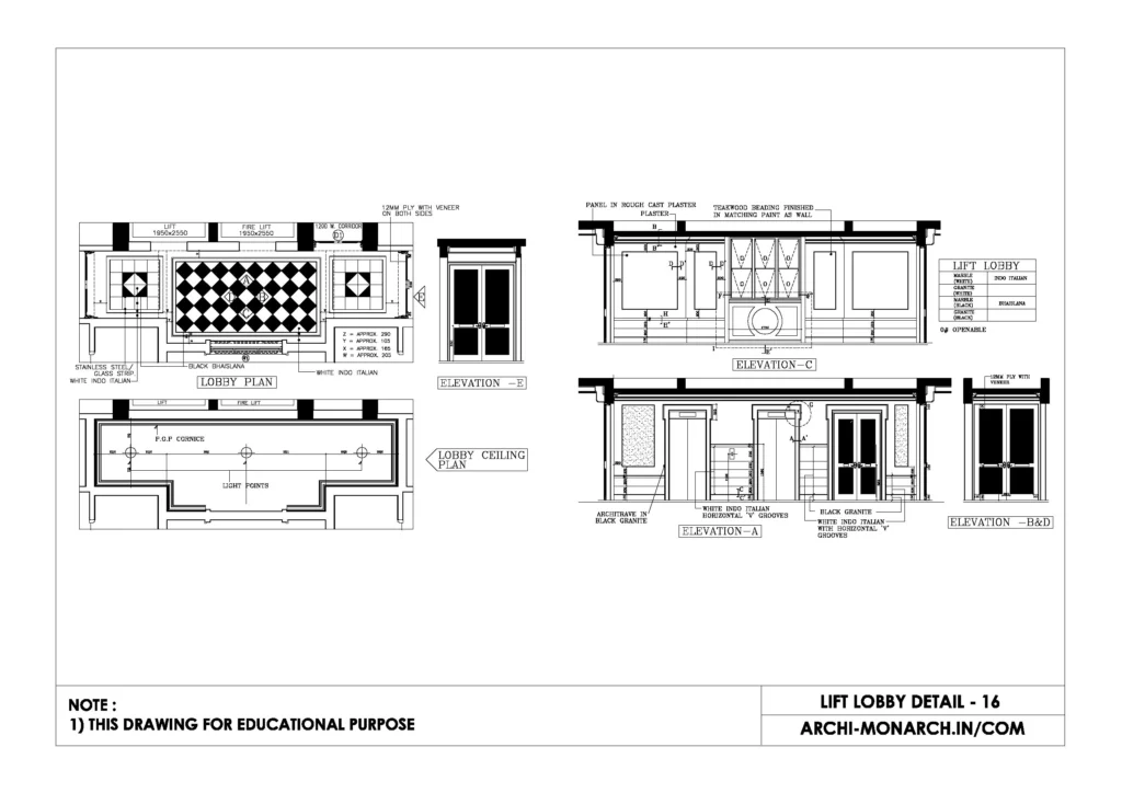
Lift lobby’s detail drawing – 16
A lift lobby’s detail drawing is a technical drawing that shows a detailed view of the lift lobby, including its construction, materials, and dimensions. This type of drawing is typically used by architects, engineers, and contractors to plan and construct the lift lobby as part of a building project.
A lift lobby detail drawing may include information such as the size and layout of the lobby, the materials used for the floor, walls, and ceiling, the location of doors, windows, and other openings, and the location and type of any fixtures or furniture. It may also include details about the electrical and mechanical systems in the lobby, such as lighting, ventilation, and the elevator itself.
The drawing may be presented in the form of a floor plan, a section view, or an elevation view, depending on the information that needs to be conveyed. It may also be accompanied by other drawings or documents that provide additional information about the lift lobby, such as specifications for materials and finishes, or details about the elevator equipment.
In addition to the basic layout and construction details, a lift lobby detail drawing may include other elements that are specific to the design and function of the lobby. For example, it may include details about the placement of signage, intercoms, or security cameras. It may also include information about the finish and color of the walls and floor, as well as any decorative elements such as artwork or plants.
It is important for a lift lobby detail drawing to be accurate and clear, as it will be used as a reference by the contractors and workers who are responsible for building the lobby. It should include all relevant information about the materials, dimensions, and construction details of the lobby, as well as any special requirements or considerations.
Our tips to help you improve your architectural lift lobby detailing.
