In architecture, door details refer to the specific design and construction elements that make up a door. These details can include the type of door (such as a hinged door or sliding door), the materials used to construct the door and its frame, the hardware used to open and close the door, and the method of weatherstripping or sealing used to keep the door airtight.
Doors details are an important aspect of building design, as they can impact the overall aesthetic, energy efficiency, and security of a building.
If you want to know about the staircase detail or toilet detail or miscellaneous detail, please click the link.
Image of Doors detail and downloadable (in DWG) link below

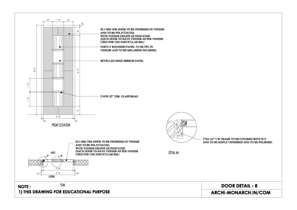
Doors detail drawing – 8
A doors detail drawing is a technical drawing that specifically illustrates the design and construction elements of a doors. It is a detailed illustration of the doors, which includes the different parts of the doors and the way they are assembled. It also includes details on how the door is hinged, how it opens, what type of lock is used, and any other specific details related to the doors.
It is often used by architects, builders and engineers as a guide for construction and installation of the doors. It shows the size, shape and orientation of the doors, as well as other important information such as the type of wood or metal used, the thickness of the doors, and any special features.
Doors detail drawings are a crucial part of the construction process, as they ensure that the door is built to the correct specifications and that it functions properly.
In addition to providing information about the doors itself, a doors detail drawing may also include information about the surrounding elements, such as the doors frame, the wall construction, and the flooring. This is important for understanding how the doors fits into the overall building design and for ensuring proper installation.
A doors detail drawing typically includes dimensions, notes and callouts to explain the different parts of the doors and how they are assembled. It may include different views such as plan view, elevation view, section view, and detail view.
The plan view shows the door in relation to the overall floor plan, while the elevation view shows the doors in relation to the wall it is mounted in. The section view shows the doors cut in half, revealing the internal construction, while the detail view shows a close-up of a specific aspect of the doors, such as the lock mechanism or weatherstripping.
Doors detail drawings are important for ensuring that the door is built and installed correctly, and that it meets any relevant building codes or accessibility requirements. They also provide a clear and accurate record of the doors design for future reference.
Our tips to help you improve your architectural door detailing.
