If you want to know about the submission drawing or miscellaneous detail or ramp detail, please click the link.
An architectural toilet is a toilet that is designed with aesthetics in mind, in addition to functionality. It is typically incorporated into the overall design of a building or space and is meant to be a visually appealing and attractive feature.
In some cases, architectural toilets may be designed to be a focal point of a space or to complement the overall design aesthetic of a building.
They may also be designed to be more functional or user-friendly, with features such as hands-free flushing or touchless operation.
Image of toilets detail and downloadable (in DWG) link below

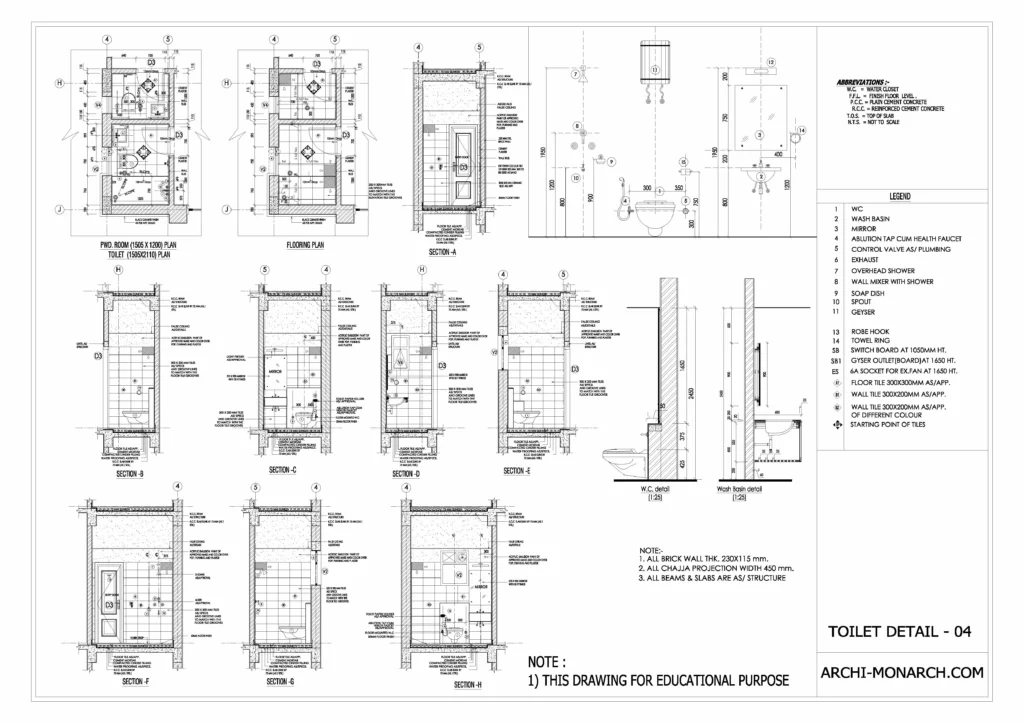
Toilets detail drawing – 4
A toilets detail drawing is a technical drawing that shows the detailed specifications and design of a toilets. It can include information such as the materials used, dimensions of the toilets, location of plumbing connections, and any special features or design elements.
Toilets detail drawings are typically used by architects, engineers, and contractors to ensure that the toilet is installed correctly and meets all relevant building codes and standards. They may also be used to help visualize the final design of a toilets before it is installed.
Here are a few more things that might be included in a toilets detail drawing:
- Floor plan: A drawing of the layout of the room, showing the location of the toilet relative to other fixtures and features.
- Elevation: A drawing that shows the front, side, or top of the toilet, with dimensions and other details.
- Section: A drawing that shows a cross-section of the toilet, revealing its internal structure and components.
- Materials: The types of materials used in the construction of the toilet, such as ceramic, porcelain, or stainless steel.
- Finish: The color, texture, and other surface finishes applied to the toilet, such as glazed, matte, or polished.
- Flushing system: The type of flushing system used, such as a gravity flush or a pressure-assisted flush.
- Water-saving features: Any features that help reduce water usage, such as dual-flush or low-flow options.
- Accessibility: Any features that make the toilet more accessible for people with disabilities, such as grab bars or a raised seat height.
- Electrical: Any electrical components or connections needed for the operation of the toilet, such as sensors or a bidet function.
Our tips to help you improve your architectural toilet detailing.
