In architecture, the roof is a crucial structural and aesthetic element that serves as the upper covering of a building. It provides protection against weather elements such as rain, snow, sunlight, and wind, ensuring the safety and comfort of the occupants.
Roofs come in various shapes and styles—such as flat, gabled, hipped, and domed—depending on the architectural design, climate, and cultural influences. Beyond their functional role, roofs often contribute significantly to the visual identity of a structure.
Materials used for roofing vary widely, including tiles, shingles, metal, and thatch, each chosen for durability, cost, and appearance. In modern architecture, roofs may also integrate sustainable features like green roofing systems or solar panels, reflecting a growing emphasis on environmental responsibility.
If you want to know about the kitchen detail or miscellaneous detail or water tank detail, please click the link.
Image of Roof detail and downloadable (in DWG) link below

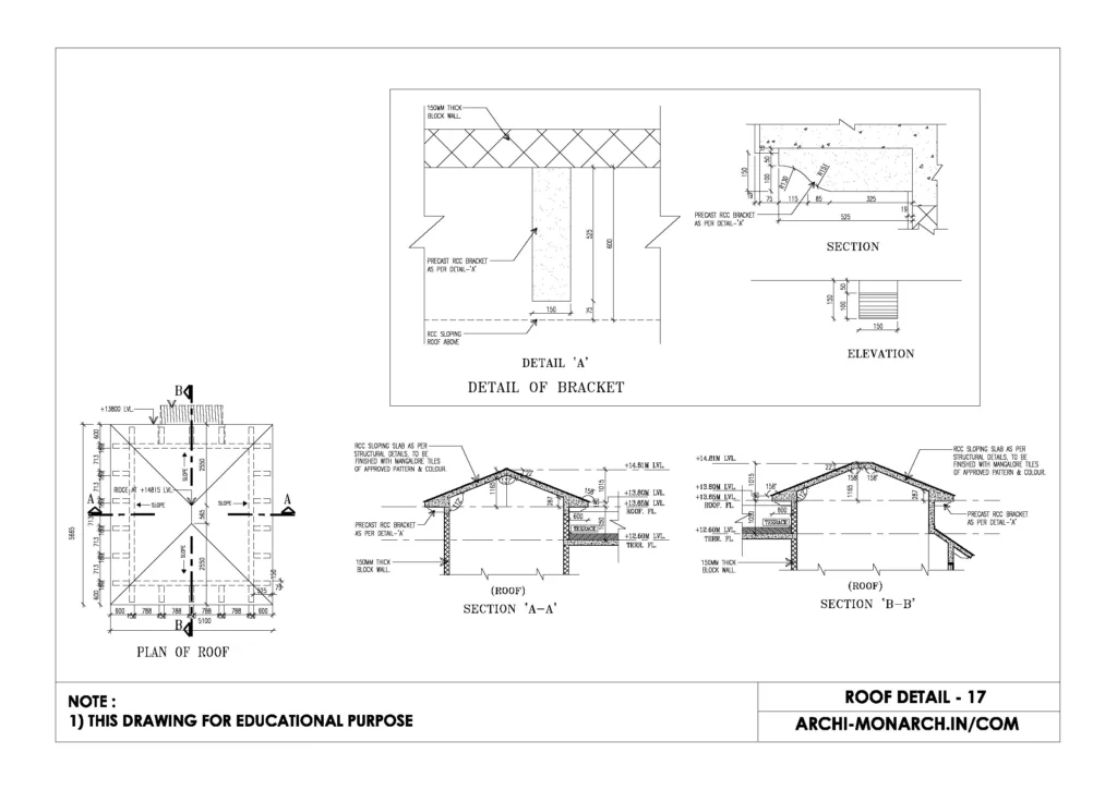
Roofs detail drawing – 17
In construction, a roof detail drawing is a precise technical illustration that shows the specific components and connections within a roofing system.
These drawings are essential for communicating how various parts of the roof—such as rafters, insulation, waterproofing membranes, flashing, gutters, and eaves—are assembled and integrated into the overall structure.
Roof detail drawings typically include cross-sections, enlarged views, and material specifications, allowing builders and contractors to understand exactly how the roof is to be constructed to meet structural, thermal, and waterproofing requirements.
These details are especially important in areas where different materials meet, such as roof-to-wall junctions or around chimneys and skylights, to prevent leaks and ensure durability. Accurate roof detailing plays a critical role in the performance, safety, and longevity of a building.
Accurate roof detailing plays a critical role in the performance, safety, and longevity of a building. It also helps ensure compliance with building codes and supports efficient construction on-site.
Our tips to help you improve your architectural Roofs detailing.
