A guard room is a room or area where security personnel are stationed to monitor and control access to a particular location, such as a building or facility.
Guard rooms are commonly found in places like government buildings, military bases, prisons, and other high-security locations.
They may be equipped with security cameras, intercom systems, and other surveillance equipment to help the guards monitor the area and keep it secure.
If you want to know about the submission drawing or toilet detail or landscape detail, please click the link.
Image of guard rooms and downloadable (in DWG) link below

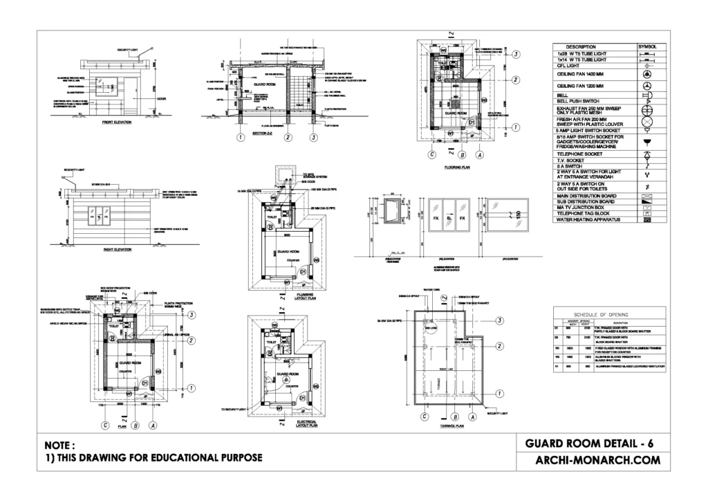
Guard rooms detail drawing – 6
A guard rooms detail drawing is a technical drawing that shows specific information about the construction and layout of a guard room. It can include details such as the location of doors, windows, electrical outlets, lighting fixtures, and other equipment. The drawing may also include information about the materials used in the construction of the guard room, such as the types of wall and floor finishes, as well as specifications for any security systems that are installed.
A guard rooms detail drawing is typically created by an architect or engineer, and is used by builders and contractors to understand the construction requirements for the room and to ensure that it is built to the correct specifications. It is a very useful document for providing the information necessary for the construction of Guard Room, the interior and exterior design, and the overall layout of the room, and other materials, equipment and systems necessary for the function of the guard room.
In addition to the information mentioned earlier, a guard rooms detail drawing may also include:
- Information about the size and dimensions of the room, including the floor plan, ceiling height, and room volume.
- Details of the door, including the type of door (e.g. steel, fire-rated), size, hardware, and locking mechanism.
- Information about the windows, including size, type, and location, as well as any security measures, such as bars or grills.
- The location of the electrical and communication systems, including outlets, switchgear, and intercoms.
- The location of lighting fixtures and their specifications, such as the type of bulb, wattage, and beam spread.
- Details about the ventilation and HVAC systems, including ductwork and grilles.
- Information about the fire protection systems and fire alarms, including smoke detectors and sprinklers.
- Details of the flooring, such as the type of flooring and finish, as well as any baseboard or trim.
- Finally, the drawing might include notes, details about the intended use and purpose of the guard room and other relevant information that can help the builder and contractor to understand the overall design and function of the guard room.
It is important to note that, the level of detail can vary depending on the purpose and complexity of the building and the guard room, and the drawings might include additional details, or some might not be necessary based on the context.
Our tips to help you improve your architectural guard room detailing.
