An expansion joint is a separation between building components that allows for movement caused by thermal expansion and contraction. These joints are typically found in floors, walls, and roofs.
They can be filled with a flexible material, such as neoprene, to seal the joint and prevent the entry of air and water. In architectural drawings, expansion joint details typically include the location, width, and material specifications for the joint.
If you want to know about the staircase detail or ramp detail or landscape detail, please click the link.
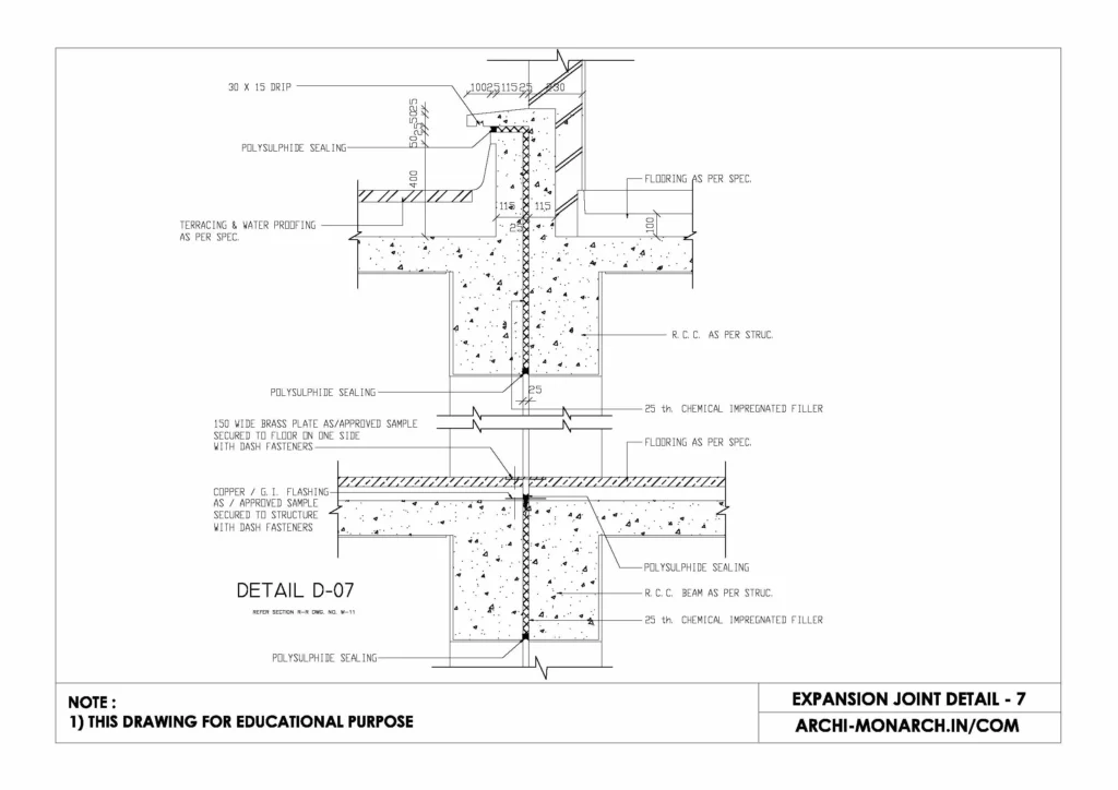
Image of expansion joint detail and downloadable (in DWG) link below

Expansions joint detail drawing – 7
An expansion joint detail drawing is a technical illustration that shows the specific design and construction details for an expansion joint in a building. It typically includes information such as the location of the joint, the width of the joint, the materials to be used, and the method of installation.
It may also include information such as the type of sealant to be used, the movement capacity of the joint, and any fire-stopping requirements. The drawing should also specify the size and type of fasteners, anchors, and other components required for the installation of the joint.
The drawing is usually created by the architect, structural engineer, or a specialized contractor.
In addition to the information already mentioned, an expansions joint detail drawing may also include:
- Cross-sections of the joint, showing the different layers and components.
- Dimensioned layout of the joint, with clearances and tolerances indicated.
- Connections to adjacent building elements, such as walls, floors, and roofs.
- Waterproofing and drainage provisions, if the joint is located in an area that is exposed to water.
- Fire-resistance rating and fire-stopping requirements, if the joint is located in a fire-rated assembly.
- Compatibility with other building systems, such as HVAC and plumbing.
It is important that the expansion joint detail drawing is accurate and complete, as it provides the construction team with the information they need to properly install the joint and ensure that it performs as intended. The drawing should be reviewed and approved by the architect, structural engineer, and other relevant parties before construction begins.
Our tips to help you improve your architectural expansion joint detailing.
